Maison neuve à
Domloup (35410) Référence : CR2469651_5

Prix du projet : Maison avec Terrain

prix 363 000 €

  • 4 pièces
  • 3 chambres
  • Surface maison 90 m2

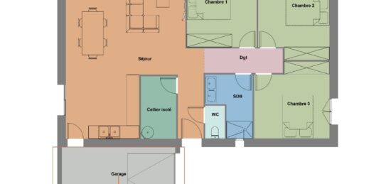
VENTE d'une maison de 4 pièces à ossature bois (90 m²) à Domloup
PROCHE DE RENNES - MAISON 4 PIÈCES NEUVE
À deux pas de Rennes, nous sommes ravis de vous proposer en vente à Domloup (35410), cette maison de 4 pièces de plain-pied de 90 m² et de 418 m² de terrain.
Elle offre trois chambres, une cuisine et une salle de bains.
Elle est proposée à l'achat pour 363 000 €.
Prenez contact avec Cyril RENVAZE pour plus d'informations sur cette maison ou sur les modalités de vente.

Mentions légales

Terrain proposé par un partenaire foncier selon disponibilités et autorisation de publicité au prix de 133 760 €. Hors droit d'enregistrement et frais de notaire. Terrain + Maison proposés au prix de 363 000 € (Hors branchements et raccordements, papiers peints, peintures, revêtement de sol dans les chambres. Tarif modifiable sans préavis). Etiquette énergie : A. Différents modèles disponibles pour ce terrain. Assurances et garanties du constructeur (RC professionnelle, décennale, dommage ouvrage, garantie de remboursement de l'acompte, livraison à prix et délai convenu) : https://www.maisonsdelavenir.com/mentions-legales/.

Contactez l'agence de Pacé

02 99 83 07 20

    * Champs obligatoires

    Vos informations sont traitées par HEXAOM et transmises à un conseiller commercial qui vous contactera afin de répondre à votre demande. Les plans et images présentés sur notre site sont la propriété d’HEXAOM et ne peuvent pas être reproduits sans son accord. Pour retrouver notre politique de protection des données personnelles et exercer vos droits conformément à la « loi informatique et liberté » cliquez-ici.