Maison neuve à
Dompierre-sur-Veyle (01240) Référence : SG2606_1

Prix du projet : Maison avec Terrain

prix 539 500 €

  • 6 pièces
  • 5 chambres
  • Surface maison 141 m2

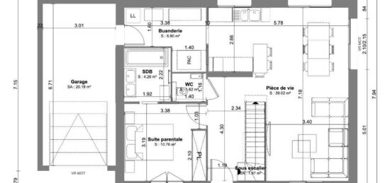
Maison F6 (141 m²) en vente à Dompierre-sur-Veyle
PROCHE DE BOURG-EN-BRESSE - MAISON 6 PIÈCES NEUVE
À vendre à deux pas de Bourg-en-Bresse, découvrez cette maison de 6 pièces de plain-pied de 141 m² et de 3 430 m² de terrain à Dompierre-sur-Veyle (01240).
Son intérieur dispose de cinq chambres, d'une cuisine et de deux salles de bains. Cette maison est neuve.
L'École Primaire les Mesanges se trouve à moins de 10 minutes à pied. Niveau transports en commun, il y a trois gares (Saint-Paul-de-Varax, Servas-Lent et Saint-Martin-du-Mont) à moins de 10 minutes en voiture. On trouve un tennis, une bibliothèque, une boulangerie et une épicerie dans les environs.
Elle est proposée à l'achat pour 539 500 €.
N'hésitez pas à prendre contact avec Sébastien GABRILLARGUES (06-81-77-73-67) pour obtenir de plus amples informations sur cette maison ou sur les modalités de vente.

Annonce proposée par un Agent Commercial Partenaire.

Mentions légales

Terrain proposé par un partenaire foncier selon disponibilités et autorisation de publicité au prix de 185 000 €. Hors droit d'enregistrement et frais de notaire. Terrain + Maison proposés au prix de 539 500 € (Hors branchements et raccordements, papiers peints, peintures, revêtement de sol dans les chambres. Tarif modifiable sans préavis). Etiquette énergie : A. Différents modèles disponibles pour ce terrain. Assurances et garanties du constructeur (RC professionnelle, décennale, dommage ouvrage, garantie de remboursement de l'acompte, livraison à prix et délai convenu) : https://www.maisons-france-confort.fr/mentions-legales/. HEXAOM Services est enregistré auprès de l'ORIAS en tant que Courtier en financement, Niveau 1, sous le numéro 14001345.

Contactez l'agence de Bourg-en-Bresse

04 74 14 04 47

    * Champs obligatoires

    Vos informations sont traitées par HEXAOM et transmises à un conseiller commercial qui vous contactera afin de répondre à votre demande. Les plans et images présentés sur notre site sont la propriété d’HEXAOM et ne peuvent pas être reproduits sans son accord. Pour retrouver notre politique de protection des données personnelles et exercer vos droits conformément à la « loi informatique et liberté » cliquez-ici.