Maison neuve à
Donnemarie-Dontilly (77520) Référence : CY2430085_1

Prix du projet : Maison avec Terrain

prix 224 000 €

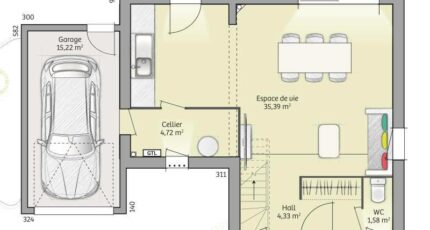
  • 5 pièces
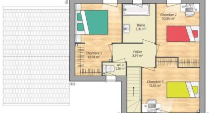
  • 3 chambres
  • Surface maison 90 m2

VENTE : maison T5 (90 m²) à Donnemarie-Dontilly
MAISON 5 PIÈCES NEUVE
À vendre : nous sommes ravis de vous présenter cette maison de 5 pièces de 90 m² à Donnemarie-Dontilly (77520).
Cette maison comporte 2 niveaux. Son intérieur compte trois chambres, une cuisine et une salle de bains. La maison est neuve.
Le terrain du bien s'étend sur 672 m².
Il y a l'École Maternelle la Butte Saint Pierre et l'École Élémentaire l'Auxence à moins de 10 minutes à pied. On trouve un tennis, une bibliothèque, trois commerces, deux boulangeries, deux boucheries-charcuteries, un bureau de poste et une épicerie à proximité de la maison.
Elle est à vendre pour la somme de 224 000 €.
Contactez notre agence (YAHIAOUI Cedric : 06-66-57-00-63) pour plus de renseignements sur cette maison. Maisons France Confort Magny-le-Hongre est là pour vous accompagner à toutes les étapes de l'achat.

Annonce proposée par un Agent Commercial Partenaire.

Mentions légales

Terrain proposé par un partenaire foncier selon disponibilités et autorisation de publicité au prix de 64 000 €. Hors droit d'enregistrement et frais de notaire. Terrain + Maison proposés au prix de 224 000 € (Hors branchements et raccordements, papiers peints, peintures, revêtement de sol dans les chambres. Tarif modifiable sans préavis). Etiquette énergie : A. Différents modèles disponibles pour ce terrain. Assurances et garanties du constructeur (RC professionnelle, décennale, dommage ouvrage, garantie de remboursement de l'acompte, livraison à prix et délai convenu) : https://www.maisons-france-confort.fr/mentions-legales/. HEXAOM Services est enregistré auprès de l'ORIAS en tant que Courtier en financement, Niveau 1, sous le numéro 14001345.

Contactez l'agence de Magny-le-Hongre

01 84 80 92 96

    * Champs obligatoires

    Vos informations sont traitées par HEXAOM et transmises à un conseiller commercial qui vous contactera afin de répondre à votre demande. Les plans et images présentés sur notre site sont la propriété d’HEXAOM et ne peuvent pas être reproduits sans son accord. Pour retrouver notre politique de protection des données personnelles et exercer vos droits conformément à la « loi informatique et liberté » cliquez-ici.