Maison neuve à
Douchy-les-Mines
(59282) Référence :
MK2456035_1
Prix du projet : Maison avec Terrain
prix 204 200 €
- 4 pièces
- 3 chambres
- Surface maison 85 m2
EMPLACEMENT PRIVILÉGIÉ - MAISON NEUVE A CONSTRUIRE
VOTRE CONSEILLER : Maxime KENNEDY - O6 14 84 91 64
Venez découvrir votre future maison neuve sur la commune de Douchy les Mines.
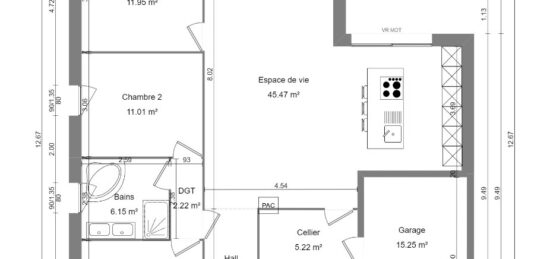
Il s'agit d'une maison de 4 pièces de plain-pied, d'une surface de 85 m².
Construction conforme aux dernières normes RE2020 (basse consommation) sur une base de mur composite (mur en bio bric de 20 cm + vide d'air + briques moulées-mains).
Mode de chauffage dernière génération via pompe à chaleur sur plancher chauffant.
Plans sur mesures et modifiables à la demande.
Cette maison dispose de trois chambres, d'une cuisine, d'une salle de bains, d'un garage intégré de 15 m² avec un cellier attenant.
Garanties et assurances obligatoires incluses (voir détails en agence).
Hors raccordements, hors branchements, hors frais de notaire sur le terrain.
Terrain sélectionné et vu pour vous sous réserve de disponibilité et au prix indiqué par notre partenaire foncier.
La maison est située dans un quartier recherché proche de Thiant, Monchaux sur Ecaillon, Haspres, Haulchin, Bouchain, Haveluy, Valenciennes, etc
A proximité des écoles et commerces de proximités.
Son prix de vente est de 204 200 €.
Contactez Maxime Kennedy (O6 14 84 91 64) pour toute information sur cette maison.
Pourquoi faire confiance à Maisons France confort ?
Maisons France Confort c'est le numéro 1 en France de la construction de maisons individuelles avec nos maisons personnalisables et qui s'adaptent à chaque budget.
C'est un accompagnement personnel dans toutes les démarches et étapes de votre projet immobilier (terrain, maison et financement entre autres).
Ensemble, construisons la maison qui vous ressemble !
Annonce proposée par un Agent Commercial Partenaire.
Mentions légales
Terrain proposé par un partenaire foncier selon disponibilités et autorisation de publicité au prix de 43 100 €. Hors droit d'enregistrement et frais de notaire. Terrain + Maison proposés au prix de 204 200 € (Hors branchements et raccordements, papiers peints, peintures, revêtement de sol dans les chambres. Tarif modifiable sans préavis). Etiquette énergie : A. Différents modèles disponibles pour ce terrain. Assurances et garanties du constructeur (RC professionnelle, décennale, dommage ouvrage, garantie de remboursement de l'acompte, livraison à prix et délai convenu) : https://www.maisons-france-confort.fr/mentions-legales/. HEXAOM Services est enregistré auprès de l'ORIAS en tant que Courtier en financement, Niveau 1, sous le numéro 14001345.Agence Maisons France Confort de Valenciennes (59300)
- Téléphone :
- 03 27 09 13 49
- Adressse :
- 1, Boulevard Saly
59300 Valenciennes, France
