Maison neuve à
Douvrin (62138) Référence : TH2441938_10

Prix du projet : Maison avec Terrain

prix 358 900 €

  • 4 pièces
  • 3 chambres
  • Surface maison 120 m2

MAISON OSSATURE BOIS

VENTE d'une maison T4 (120 m²) à Douvrin
EMPLACEMENT PRIVILÉGIÉ - MAISON 4 PIÈCES NEUVE
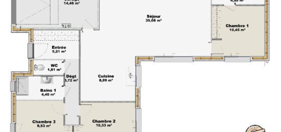
En vente : ayez le coup de coeur pour cette maison de 4 pièces de plain-pied de 120 m² et de 376 m² de terrain bénéficiant d'un emplacement privilégié dans Douvrin (62138).
Conçue de plain-pied, elle offre trois chambres, une cuisine et deux salles de bains. Cette maison est neuve.
Elle est située dans un quartier prisé. On trouve cinq établissements scolaires à moins de 10 minutes à pied, tout comme une crèche. Côté transports en commun, il y a 3 gares à moins de 10 minutes en voiture. On trouve un tennis, une bibliothèque, des commerces, une boulangerie, un bureau de poste et une boucherie-charcuterie à proximité.
Elle est à vendre pour la somme de 358 900 €.
Prenez contact avec Thomas HAUSTRATE (tél : 06-49-81-47-04) pour toute question sur la maison ou sur les démarches à suivre. Maisons France Confort Hénin-Beaumont vous accompagne à toutes les étapes de votre projet et dans tous vos projets immobiliers.

Mentions légales

Terrain proposé par un partenaire foncier selon disponibilités et autorisation de publicité au prix de 60 000 €. Hors droit d'enregistrement et frais de notaire. Terrain + Maison proposés au prix de 358 900 € (Hors branchements et raccordements, papiers peints, peintures, revêtement de sol dans les chambres. Tarif modifiable sans préavis). Etiquette énergie : A. Différents modèles disponibles pour ce terrain. Assurances et garanties du constructeur (RC professionnelle, décennale, dommage ouvrage, garantie de remboursement de l'acompte, livraison à prix et délai convenu) : https://www.maisons-france-confort.fr/mentions-legales/. HEXAOM Services est enregistré auprès de l'ORIAS en tant que Courtier en financement, Niveau 1, sous le numéro 14001345.

Contactez l'agence de Hénin-Beaumont

03 21 14 37 05

    * Champs obligatoires

    Vos informations sont traitées par HEXAOM et transmises à un conseiller commercial qui vous contactera afin de répondre à votre demande. Les plans et images présentés sur notre site sont la propriété d’HEXAOM et ne peuvent pas être reproduits sans son accord. Pour retrouver notre politique de protection des données personnelles et exercer vos droits conformément à la « loi informatique et liberté » cliquez-ici.