Maison neuve à
Douvrin (62138) Référence : TH2441938_2

Prix du projet : Maison avec Terrain

prix 267 989 €

  • 4 pièces
  • 3 chambres
  • Surface maison 94 m2

MAISON OSSATURE BOIS

Douvrin : maison de 4 pièces (94 m²) à vendre
EMPLACEMENT PRIVILÉGIÉ - MAISON 4 PIÈCES NEUVE
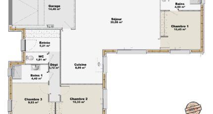
Nous vous proposons, bénéficiant d'un emplacement d'exception dans Douvrin (62138), cette maison de 4 pièces de plain-pied de 94 m² et de 376 m² de terrain. Conçue de plain-pied, elle comporte trois chambres, une cuisine et deux salles de bains.
La maison est neuve.
Elle se situe dans un quartier prisé. Cinq établissements scolaires sont implantés à moins de 10 minutes à pied, tout comme une crèche. Côté transports en commun, on trouve 3 gares à moins de 10 minutes en voiture. Il y a un tennis, une bibliothèque, des commerces, une boulangerie, un bureau de poste et une boucherie-charcuterie à quelques minutes de la maison.
Elle est proposée à l'achat pour 267 989 €.
Contactez Thomas HAUSTRATE (tél : 06-49-81-47-04) pour toute question sur cette maison. Maisons France Confort Hénin-Beaumont est là pour vous accompagner dans toutes vos démarches.

Mentions légales

Terrain proposé par un partenaire foncier selon disponibilités et autorisation de publicité au prix de 60 000 €. Hors droit d'enregistrement et frais de notaire. Terrain + Maison proposés au prix de 267 989 € (Hors branchements et raccordements, papiers peints, peintures, revêtement de sol dans les chambres. Tarif modifiable sans préavis). Etiquette énergie : A. Différents modèles disponibles pour ce terrain. Assurances et garanties du constructeur (RC professionnelle, décennale, dommage ouvrage, garantie de remboursement de l'acompte, livraison à prix et délai convenu) : https://www.maisons-france-confort.fr/mentions-legales/. HEXAOM Services est enregistré auprès de l'ORIAS en tant que Courtier en financement, Niveau 1, sous le numéro 14001345.

Contactez l'agence de Hénin-Beaumont

03 21 14 37 05

    * Champs obligatoires

    Vos informations sont traitées par HEXAOM et transmises à un conseiller commercial qui vous contactera afin de répondre à votre demande. Les plans et images présentés sur notre site sont la propriété d’HEXAOM et ne peuvent pas être reproduits sans son accord. Pour retrouver notre politique de protection des données personnelles et exercer vos droits conformément à la « loi informatique et liberté » cliquez-ici.