Maison neuve à
Écharcon
(91540) Référence :
DC2482565_2
Prix du projet : Maison avec Terrain
prix 540 665 €
- 6 pièces
- 5 chambres
- Surface maison 114 m2
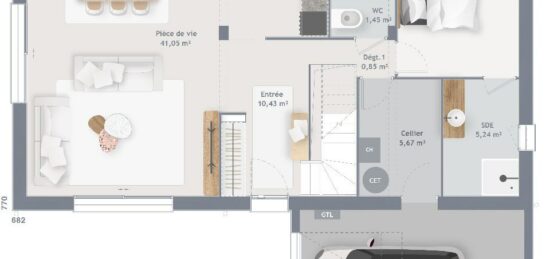
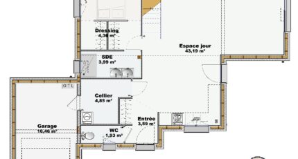
VENTE : maison T6 (114 m²) à Écharcon
MAISON 6 PIÈCES NEUVE - PROCHE DE CRÉTEIL
En vente : à côté de la station Évry-Courcouronnes (Paris à 35 min avec le RER D), Maisons France Confort Melun vous présente à Écharcon (91540), cette maison de 6 pièces de 114 m² et de 818 m² de terrain. Son intérieur se divise en cinq chambres, une cuisine et deux salles de bains.
Il s'agit d'une maison de 2 niveaux. Elle est neuve.
L'École Primaire Jean Satonnet est implantée à moins de 10 minutes à pied. Niveau transports, on trouve deux lignes de RER (D et C) ainsi que 18 gares à moins de 10 minutes en voiture. Il y a une bibliothèque et deux commerces à quelques minutes à peine.
Elle est proposée à l'achat pour 540 665 €.
Contactez notre agence (CORDIER David : 06-10-79-38-15) pour toute question sur cette maison ou sur les démarches à suivre. Maisons France Confort Melun est là pour vous accompagner dans tous vos projets immobiliers.
Annonce proposée par un Agent Commercial Partenaire.
Mentions légales
Terrain proposé par un partenaire foncier selon disponibilités et autorisation de publicité au prix de 180 000 €. Hors droit d'enregistrement et frais de notaire. Terrain + Maison proposés au prix de 540 665 € (Hors branchements et raccordements, papiers peints, peintures, revêtement de sol dans les chambres. Tarif modifiable sans préavis). Etiquette énergie : A. Différents modèles disponibles pour ce terrain. Assurances et garanties du constructeur (RC professionnelle, décennale, dommage ouvrage, garantie de remboursement de l'acompte, livraison à prix et délai convenu) : https://www.maisons-france-confort.fr/mentions-legales/. HEXAOM Services est enregistré auprès de l'ORIAS en tant que Courtier en financement, Niveau 1, sous le numéro 14001345.Agence Maisons France Confort de Melun (77000)
- Téléphone :
- 01 64 14 43 20
- Adressse :
- 3 route de Nangis
77000 Melun, France