Maison neuve à
Écharcon (91540) Référence : DC2491261_2

Prix du projet : Maison avec Terrain

prix 405 516 €

  • 5 pièces
  • 3 chambres
  • Surface maison 90 m2

Maison F5 (90 m²) en vente à Écharcon
PROCHE DE CRÉTEIL - MAISON 5 PIÈCES NEUVE
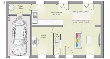
Proche du RER D (station Évry-Courcouronnes, 35 min de Paris), nous vous présentons cette maison de 5 pièces de 90 m² et de 818 m² de terrain à Écharcon (91540). Son intérieur comporte trois chambres, une cuisine et une salle de bains.
Cette maison possède 2 niveaux. Elle est neuve.
Il y a l'École Primaire Jean Satonnet à moins de 10 minutes à pied. Niveau transports, on trouve deux lignes de RER (D et C) ainsi que 18 gares à moins de 10 minutes en voiture. On trouve une bibliothèque et deux commerces dans les environs.
Elle est proposée à l'achat pour 405 516 €.
Prenez contact avec David CORDIER (tél : 06-10-79-38-15) pour plus de renseignements sur cette maison. Maisons France Confort Melun vous accompagne dans toutes vos démarches et à toutes les étapes de l'achat.

Annonce proposée par un Agent Commercial Partenaire.

Mentions légales

Terrain proposé par un partenaire foncier selon disponibilités et autorisation de publicité au prix de 180 000 €. Hors droit d'enregistrement et frais de notaire. Terrain + Maison proposés au prix de 405 516 € (Hors branchements et raccordements, papiers peints, peintures, revêtement de sol dans les chambres. Tarif modifiable sans préavis). Etiquette énergie : A. Différents modèles disponibles pour ce terrain. Assurances et garanties du constructeur (RC professionnelle, décennale, dommage ouvrage, garantie de remboursement de l'acompte, livraison à prix et délai convenu) : https://www.maisons-france-confort.fr/mentions-legales/. HEXAOM Services est enregistré auprès de l'ORIAS en tant que Courtier en financement, Niveau 1, sous le numéro 14001345.

Contactez l'agence de Melun

01 64 14 43 20

    * Champs obligatoires

    Vos informations sont traitées par HEXAOM et transmises à un conseiller commercial qui vous contactera afin de répondre à votre demande. Les plans et images présentés sur notre site sont la propriété d’HEXAOM et ne peuvent pas être reproduits sans son accord. Pour retrouver notre politique de protection des données personnelles et exercer vos droits conformément à la « loi informatique et liberté » cliquez-ici.