Maison neuve à
Échillais (17620) Référence : CR2466620_6

Prix du projet : Maison avec Terrain

prix 254 852 €

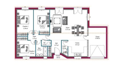
  • 3 pièces
  • 2 chambres
  • Surface maison 65 m2

Cette maison rectangulaire très actuelle se démarque avec la découpe de son porche en biseau.

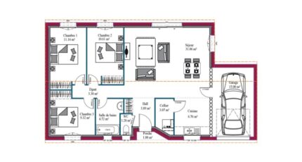
Ce modèle de maison plain-pied se décline en 3 surfaces (65 m2, 85 m2et 90 m2) avec 2 ou 3 chambres et un garage de 15 m2. Il existe également sans garage.
Cette réalisation très actuelle possède un grand salon-séjour efficacement complété par une cuisine ouverte avec cellier.

Ce modèle de plain-pied saura vous plaire grâce à sa simplicité et son agencement idéalement pensé pour le quotidien.

Contact et renseignements: Cédric RÊTEUX O7 67 07 20 68 Projet de construction signé les Maisons MCA Maisons de la Côte Atlantique Saintes est là pour vous accompagner dans tous vos projets immobiliers.

Bien sûr, cette maison est 100% personnalisable.

Mentions légales

Idée de réalisation en modèle prêt à décorer sur l'un de nos terrains partenaires, sous réserve de disponibilités. Voir détails en agence.

Contactez l'agence de Rochefort

05 46 88 71 67

    * Champs obligatoires

    Vos informations sont traitées par HEXAOM et transmises à un conseiller commercial qui vous contactera afin de répondre à votre demande. Les plans et images présentés sur notre site sont la propriété d’HEXAOM et ne peuvent pas être reproduits sans son accord. Pour retrouver notre politique de protection des données personnelles et exercer vos droits conformément à la « loi informatique et liberté » cliquez-ici.