Maison neuve à
Écurie
(62223) Référence :
GL2440844_3
Prix du projet : Maison avec Terrain
prix 356 197 €
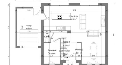
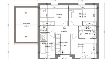
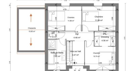
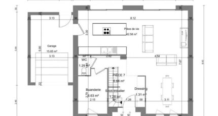
- 6 pièces
- 3 chambres
- Surface maison 110 m2
Écurie : maison de 6 pièces (110 m²) à vendre
EMPLACEMENT PRIVILÉGIÉ - MAISON 6 PIÈCES NEUVE
En vente : localisée à 44 km de la frontière belge et à deux pas de Douai, nous sommes ravis de vous proposer cette maison de 6 pièces de 110 m² et de 520 m² de terrain bénéficiant d'un emplacement privilégié dans Écurie (62223). Elle dispose de trois chambres, d'une cuisine et d'une salle de bains.
Il s'agit d'une maison de 2 niveaux. Elle est neuve.
Elle se situe dans un secteur attractif. On trouve l'École Élémentaire Haroun Tazieff rpi 74 à moins de 10 minutes à pied. Niveau transports en commun, il y a huit gares à moins de 10 minutes en voiture. On trouve une bibliothèque dans les environs.
Les terrains sont vendus uniquement dans le but de faire construire avec Maisons France Confort.
Les plans de maisons sont tous réalisés sur mesure avec des possibilités infinies en fonction de vos envies
Son prix de vente est de 356 197 €.
N'hésitez pas à prendre contact avec Grégory LEROY (06-10-76-67-66) pour toute question sur la maison.
Mentions légales
Terrain proposé par un partenaire foncier selon disponibilités et autorisation de publicité au prix de 98 000 €. Hors droit d'enregistrement et frais de notaire. Terrain + Maison proposés au prix de 356 197 € (Hors branchements et raccordements, papiers peints, peintures, revêtement de sol dans les chambres. Tarif modifiable sans préavis). Etiquette énergie : A. Différents modèles disponibles pour ce terrain. Assurances et garanties du constructeur (RC professionnelle, décennale, dommage ouvrage, garantie de remboursement de l'acompte, livraison à prix et délai convenu) : https://www.maisons-france-confort.fr/mentions-legales/. HEXAOM Services est enregistré auprès de l'ORIAS en tant que Courtier en financement, Niveau 1, sous le numéro 14001345.Agence Maisons France Confort de Hénin-Beaumont (62110)
- Téléphone :
- 03 21 14 37 05
- Adressse :
- Chemin de Noyelles
62110 Hénin-Beaumont, France
