Maison neuve à
Empeaux
(31470) Référence :
CC2455887_4
Prix du projet : Maison avec Terrain
prix 375 988 €
- 6 pièces
- 4 chambres
- Surface maison 110 m2
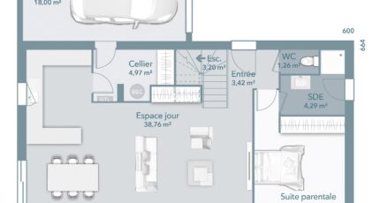
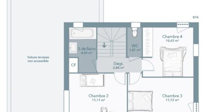
VENTE : maison de 6 pièces (110 m²) à Empeaux
PROCHE DE TOULOUSE - MAISON 6 PIÈCES NEUVE
À vendre à quelques kilomètres de Toulouse, ayez le coup de coeur pour cette maison de 6 pièces de 110 m² et de 1 060 m² de terrain à Empeaux (31470).
Cette maison compte 2 niveaux. Elle se divise en quatre chambres, une cuisine et deux salles de bains. Cette maison est neuve.
Elle est proposée à l'achat pour 375 988 €.
Contactez nous pour obtenir de plus amples informations sur cette maison ou sur les modalités de vente.
Maisons France Confort Tournefeuille 05.61.16.47.77 est là pour vous accompagner à toutes les étapes de votre projet.
Hors frais annexes.
Annonce proposée par un Agent Commercial Partenaire.
Mentions légales
Terrain proposé par un partenaire foncier selon disponibilités et autorisation de publicité au prix de 110 000 €. Hors droit d'enregistrement et frais de notaire. Terrain + Maison proposés au prix de 375 988 € (Hors branchements et raccordements, papiers peints, peintures, revêtement de sol dans les chambres. Tarif modifiable sans préavis). Etiquette énergie : A. Différents modèles disponibles pour ce terrain. Assurances et garanties du constructeur (RC professionnelle, décennale, dommage ouvrage, garantie de remboursement de l'acompte, livraison à prix et délai convenu) : https://www.maisons-france-confort.fr/mentions-legales/. HEXAOM Services est enregistré auprès de l'ORIAS en tant que Courtier en financement, Niveau 1, sous le numéro 14001345.Agence Maisons France Confort de Tournefeuille (31170)
- Téléphone :
- 05 61 16 47 77
- Adressse :
- 114 chemin de Larramet
31170 Tournefeuille, France
