Maison neuve à
Encausse
(32430) Référence :
SP2448700_2
Prix du projet : Maison avec Terrain
prix 289 320 €
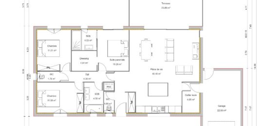
- 4 pièces
- 4 chambres
- Surface maison 112 m2
À Encausse, charmant petit village niché au coeur des vallons du Gers, découvrez une belle opportunité pour concrétiser votre projet de vie dans un environnement naturel et paisible.
Situé à seulement 15 minutes de L'Isle-Jourdain et de Lévignac, ce terrain déjà viabilisé et prêt à bâtir offre un cadre idéal pour construire votre future maison tout en restant proche des commodités et des bassins d'emploi.
Nous vous proposons la réalisation d'une agréable maison de plain-pied, fonctionnelle et lumineuse, parfaitement adaptée à ce terrain et à la douceur de vivre gersoise.
Projet terrain + maison à partir de 289 320 €, incluant le terrain, la maison et les frais de notaire, hors frais annexes, hors raccordements, hors taxes et hors finitions.
Avec Maisons France Confort, vous bénéficiez d'un accompagnement complet et d'une construction sécurisée, avec plus de 400 points de contrôle tout au long du chantier pour garantir la qualité de votre future maison.
Annonce proposée par un Agent Commercial Partenaire.
Mentions légales
Terrain proposé par un partenaire foncier selon disponibilités et autorisation de publicité au prix de 78 000 €. Hors droit d'enregistrement et frais de notaire. Terrain + Maison proposés au prix de 289 320 € (Hors branchements et raccordements, papiers peints, peintures, revêtement de sol dans les chambres. Tarif modifiable sans préavis). Etiquette énergie : A. Différents modèles disponibles pour ce terrain. Assurances et garanties du constructeur (RC professionnelle, décennale, dommage ouvrage, garantie de remboursement de l'acompte, livraison à prix et délai convenu) : https://www.maisons-france-confort.fr/mentions-legales/. HEXAOM Services est enregistré auprès de l'ORIAS en tant que Courtier en financement, Niveau 1, sous le numéro 14001345.Agence Maisons France Confort de Tournefeuille (31170)
- Téléphone :
- 05 61 16 47 77
- Adressse :
- 114 chemin de Larramet
31170 Tournefeuille, France
