Maison neuve à
Entrammes
(53260) Référence :
CF2467940_4
Prix du projet : Maison avec Terrain
prix 256 400 €
- 4 pièces
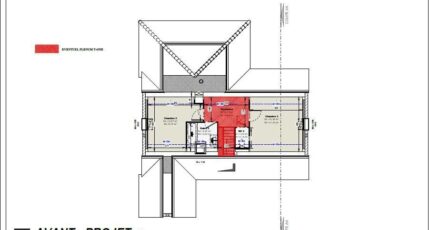
- 4 chambres
- Surface maison 95 m2
Entrammes : maison de 4 pièces (95 m²) en vente
IDÉALEMENT SITUÉE - MAISON 4 PIÈCES NEUVE
À vendre : à quelques kilomètres de Laval, idéalement située dans Entrammes (53260), Maisons France Confort Bonchamp-lès-Laval vous présente cette maison de 4 pièces de 95 m² et de 429 m² de terrain. Son intérieur comporte quatre chambres, une cuisine et deux salles de bains.
Il s'agit d'une maison de 2 niveaux. Elle est neuve.
Cette maison se trouve dans un quartier prisé. Des écoles maternelles et élémentaires sont implantées à moins de 10 minutes à pied, tout comme, parmi lesquelles l'École Primaire Privée Saint Joseph. Niveau transports, il y a la gare Laval à moins de 10 minutes en voiture. On trouve un accès à l'autoroute A81 à 12 km. On trouve une bibliothèque, un tennis et une supérette dans les environs.
Elle est à vendre pour la somme de 256 400 €.
Contactez notre agence (Claire FERBER : 06-61-55-82-88) pour toute question sur la maison, sur les démarches à suivre ou sur les modalités de vente. Maisons France Confort Bonchamp-lès-Laval vous accompagne dans tous vos projets immobiliers et à toutes les étapes de votre projet.
Mentions légales
Terrain proposé par un partenaire foncier selon disponibilités et autorisation de publicité au prix de 51 500 €. Hors droit d'enregistrement et frais de notaire. Terrain + Maison proposés au prix de 256 400 € (Hors branchements et raccordements, papiers peints, peintures, revêtement de sol dans les chambres. Tarif modifiable sans préavis). Etiquette énergie : A. Différents modèles disponibles pour ce terrain. Assurances et garanties du constructeur (RC professionnelle, décennale, dommage ouvrage, garantie de remboursement de l'acompte, livraison à prix et délai convenu) : https://www.maisons-france-confort.fr/mentions-legales/. HEXAOM Services est enregistré auprès de l'ORIAS en tant que Courtier en financement, Niveau 1, sous le numéro 14001345.Agence Maisons France Confort de Bonchamp-lès-Laval (53960)
- Téléphone :
- 02 43 67 00 13
- Adressse :
- 1000, Boulevard des Grands Bouessays
53960 Bonchamp-lès-Laval, France
