Maison neuve à
Éragny
(95610) Référence :
ER2425355_1
Prix du projet : Maison avec Terrain
prix 489 500 €
- 6 pièces
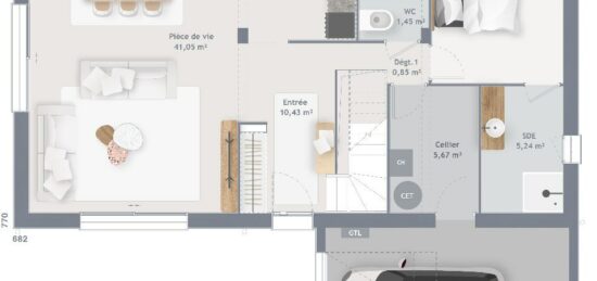
- 4 chambres
- Surface maison 109 m2
Maison F6 (109 m²) à vendre à Éragny
EMPLACEMENT PRIVILÉGIÉ - MAISON 6 PIÈCES NEUVE
En vente : à côté de la gare d'Éragny-Neuville (Paris à 30 min par le Transilien J), bénéficiant d'un emplacement privilégié dans Éragny (95610), nous sommes ravis de vous présenter cette maison de 6 pièces de 109 m². Elle comporte quatre chambres, une cuisine et deux salles de bains.
Le terrain de la propriété est de 776 m².
Il s'agit d'une maison de 2 niveaux. Elle est neuve.
La maison est située dans un secteur prisé. Il y a des établissements scolaires de tous types à moins de 10 minutes à pied. Niveau transports, on trouve la gare Éragny-Neuville dans les environs. Il y a une bibliothèque, deux tennis, un bassin de natation, des commerces, des boulangeries, trois supermarchés, un bureau de poste et des boucheries-charcuteries à proximité du logement.
Son prix de vente est de 489 500 €.
Contactez Emmanuel au 07/81/56/24/24 pour tout renseignement sur la maison ou sur les démarches à suivre. Concrétisez vos projets immobiliers avec Maisons France Confort Moisselles.
Mentions légales
Terrain proposé par un partenaire foncier selon disponibilités et autorisation de publicité au prix de 237 000 €. Hors droit d'enregistrement et frais de notaire. Terrain + Maison proposés au prix de 489 500 € (Hors branchements et raccordements, papiers peints, peintures, revêtement de sol dans les chambres. Tarif modifiable sans préavis). Etiquette énergie : A. Différents modèles disponibles pour ce terrain. Assurances et garanties du constructeur (RC professionnelle, décennale, dommage ouvrage, garantie de remboursement de l'acompte, livraison à prix et délai convenu) : https://www.maisons-france-confort.fr/mentions-legales/. HEXAOM Services est enregistré auprès de l'ORIAS en tant que Courtier en financement, Niveau 1, sous le numéro 14001345.Agence Maisons France Confort de Moisselles (95570)
- Téléphone :
- 01 39 91 72 46
- Adressse :
- Domexpo Nord
95570 Moisselles, France
