Maison neuve à
Éragny (95610) Référence : MD2437612_1

Prix du projet : Maison avec Terrain

prix 400 778 €

  • 5 pièces
  • 3 chambres
  • Surface maison 90 m2

VENTE d'une maison de 5 pièces (90 m²) à Éragny
QUARTIER RECHERCHÉ - MAISON 5 PIÈCES NEUVE
En vente : à deux pas de la gare d'Éragny-Neuville (Paris à 30 min avec le Transilien J), Maisons France Confort Vernon vous présente, dans un quartier recherché d'Éragny (95610), cette maison de 5 pièces de 90 m².
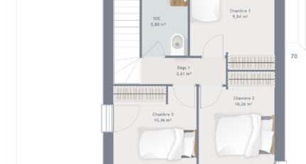
Cette maison compte 2 niveaux. Son intérieur est composé de trois chambres, d'une cuisine et d'une salle de bains. La maison est neuve.
Le terrain de la propriété s'étend sur 430 m².
Cette maison se trouve dans un secteur attractif. Il y a des écoles (de la maternelle au lycée) à moins de 10 minutes à pied. Côté transports, on trouve la gare Éragny-Neuville à proximité. On trouve une bibliothèque, deux tennis, un bassin de natation, des commerces, des boulangeries, trois supermarchés, des boucheries-charcuteries et des épiceries à quelques minutes du bien.
Son prix de vente est de 400 778 €.
Contactez Murielle DEBART (tél : 06-29-34-36-28) pour toute information sur la maison, sur les modalités de vente ou sur les démarches à suivre. Maisons France Confort Vernon est là pour vous accompagner dans tous vos projets immobiliers.

Mentions légales

Terrain proposé par un partenaire foncier selon disponibilités et autorisation de publicité au prix de 190 000 €. Hors droit d'enregistrement et frais de notaire. Terrain + Maison proposés au prix de 400 778 € (Hors branchements et raccordements, papiers peints, peintures, revêtement de sol dans les chambres. Tarif modifiable sans préavis). Etiquette énergie : A. Différents modèles disponibles pour ce terrain. Assurances et garanties du constructeur (RC professionnelle, décennale, dommage ouvrage, garantie de remboursement de l'acompte, livraison à prix et délai convenu) : https://www.maisons-france-confort.fr/mentions-legales/. HEXAOM Services est enregistré auprès de l'ORIAS en tant que Courtier en financement, Niveau 1, sous le numéro 14001345.

Contactez l'agence de Vernon

02 32 51 45 05

    * Champs obligatoires

    Vos informations sont traitées par HEXAOM et transmises à un conseiller commercial qui vous contactera afin de répondre à votre demande. Les plans et images présentés sur notre site sont la propriété d’HEXAOM et ne peuvent pas être reproduits sans son accord. Pour retrouver notre politique de protection des données personnelles et exercer vos droits conformément à la « loi informatique et liberté » cliquez-ici.