Maison neuve à
Erquy (22430) Référence : DD2458286_2

Prix du projet : Maison avec Terrain

prix 350 500 €

  • 5 pièces
  • 4 chambres
  • Surface maison 85 m2

VENTE d'une maison de 5 pièces (85 m²) à Erquy
IDÉALEMENT SITUÉE - MAISON 5 PIÈCES NEUVE
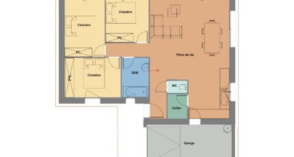
À vendre à 3 km de la Manche et à deux pas de Saint-Brieuc, nous vous proposons cette maison de 5 pièces de plain-pied de 85 m² et de 501 m² de terrain idéalement située dans Erquy (22430).
Conçue de plain-pied, elle est composée de quatre chambres, d'une cuisine et d'une salle de bains. La maison est neuve.
Cette propriété se situe dans un quartier attractif. Cinq établissements scolaires sont implantés à moins de 10 minutes en voiture, tout comme une crèche à moins de 10 minutes à pied. Il y a des bibliothèques, des ports de plaisance, deux bassins de natation, des tennis, des commerces, trois épiceries, des poissonneries, des boucheries-charcuteries et trois bureaux de poste à quelques minutes du logement. Enfin, 2 marchés animent le quartier.
Elle est à vendre pour la somme de 350 500 €.
Prenez contact avec Maisons de l'Avenir Saint Brieuc pour toute information sur la maison ou sur les démarches à suivre. Maisons de l'Avenir Saint-Brieuc vous accompagne à toutes les étapes de l'achat et dans tous vos projets immobiliers.

Mentions légales

Terrain proposé par un partenaire foncier selon disponibilités et autorisation de publicité au prix de 125 500 €. Hors droit d'enregistrement et frais de notaire. Terrain + Maison proposés au prix de 350 500 € (Hors branchements et raccordements, papiers peints, peintures, revêtement de sol dans les chambres. Tarif modifiable sans préavis). Etiquette énergie : A. Différents modèles disponibles pour ce terrain. Assurances et garanties du constructeur (RC professionnelle, décennale, dommage ouvrage, garantie de remboursement de l'acompte, livraison à prix et délai convenu) : https://www.maisonsdelavenir.com/mentions-legales/.

Contactez l'agence de Saint-Brieuc

02 96 78 52 58

    * Champs obligatoires

    Vos informations sont traitées par HEXAOM et transmises à un conseiller commercial qui vous contactera afin de répondre à votre demande. Les plans et images présentés sur notre site sont la propriété d’HEXAOM et ne peuvent pas être reproduits sans son accord. Pour retrouver notre politique de protection des données personnelles et exercer vos droits conformément à la « loi informatique et liberté » cliquez-ici.