Maison neuve à
Esbly (77450) Référence : CY2469401_1

Prix du projet : Maison avec Terrain

prix 368 000 €

  • 5 pièces
  • 3 chambres
  • Surface maison 80 m2

Esbly : maison de 5 pièces (80 m²) à vendre
IDÉALEMENT SITUÉE - MAISON 5 PIÈCES NEUVE
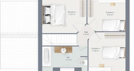
À 250 m de la gare, venez découvrir à vendre, idéalement située dans Esbly (77450), cette maison de 5 pièces de 80 m² et de 600 m² de terrain. Elle inclut trois chambres, une cuisine et une salle de bains.
Cette maison possède 2 niveaux. Elle est neuve.
Cette maison est située dans un quartier convoité. On trouve l'École Élémentaire du Centre, l'École Maternelle les Couleurs et le Collège Louis Braille à moins de 10 minutes à pied et deux structures d'accueil pour les tout-petits. Niveau transports en commun, il y a la gare Esbly juste à côté, mettant la propriété à 30 min de Paris en transilien. On trouve un tennis, des commerces, deux épiceries, deux boucheries-charcuteries et un bureau de poste à quelques minutes du logement.
Son prix de vente est de 368 000 €.
N'hésitez pas à prendre contact avec notre agence (Cedric YAHIAOUI : 06-66-57-00-63) pour obtenir de plus amples renseignements sur cette maison.

Annonce proposée par un Agent Commercial Partenaire.

Mentions légales

Terrain proposé par un partenaire foncier selon disponibilités et autorisation de publicité au prix de 178 000 €. Hors droit d'enregistrement et frais de notaire. Terrain + Maison proposés au prix de 368 000 € (Hors branchements et raccordements, papiers peints, peintures, revêtement de sol dans les chambres. Tarif modifiable sans préavis). Etiquette énergie : A. Différents modèles disponibles pour ce terrain. Assurances et garanties du constructeur (RC professionnelle, décennale, dommage ouvrage, garantie de remboursement de l'acompte, livraison à prix et délai convenu) : https://www.maisons-france-confort.fr/mentions-legales/. HEXAOM Services est enregistré auprès de l'ORIAS en tant que Courtier en financement, Niveau 1, sous le numéro 14001345.

Contactez l'agence de Mareuil-lès-Meaux

01 60 09 28 30

    * Champs obligatoires

    Vos informations sont traitées par HEXAOM et transmises à un conseiller commercial qui vous contactera afin de répondre à votre demande. Les plans et images présentés sur notre site sont la propriété d’HEXAOM et ne peuvent pas être reproduits sans son accord. Pour retrouver notre politique de protection des données personnelles et exercer vos droits conformément à la « loi informatique et liberté » cliquez-ici.