Maison neuve à
Esquay-sur-Seulles
(14400) Référence :
JS2322640_3
Prix du projet : Maison avec Terrain
prix 256 000 €
- 7 pièces
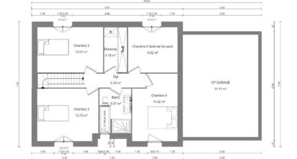
- 5 chambres
- Surface maison 120 m2
Maison F7 (120 m²) à vendre à Bayeux
PROCHE DE CAEN - MAISON 7 PIÈCES NEUVE
En vente à 9 km de la Manche et à 26 km de Caen, Maisons France Confort Bayeux vous propose cette maison de 7 pièces de 120 m² à Bayeux (14400). Elle comporte cinq chambres, une cuisine et deux salles de bains.
Le terrain du bien est de 303 m².
Cette maison possède 2 niveaux. Elle est neuve.
Des établissements scolaires de tous types (de la maternelle au lycée) sont implantés à moins de 10 minutes à pied, tout comme une crèche. Côté transports, on trouve la gare Bayeux dans les environs. Il y a un accès à la nationale N13 à 3 km. Il y a une bibliothèque, des commerces, des boulangeries, un supermarché, des boucheries-charcuteries et trois épiceries à proximité du logement. Enfin, 2 marchés animent le quartier.
Elle est à vendre pour la somme de 256 000 €.
Prenez contact avec notre agence (HUE Emilie : 06-29-81-46-66) pour toute information sur la maison et sur les modalités de vente. Maisons France Confort Bayeux vous accompagne dans toutes vos démarches et à toutes les étapes de votre projet.
Annonce proposée par un Agent Commercial Partenaire.
Mentions légales
Terrain proposé par un partenaire foncier selon disponibilités et autorisation de publicité au prix de 56 000 €. Hors droit d'enregistrement et frais de notaire. Maison proposée, avec un contrat de construction de maison individuelle, dans le cadre de la loi du 19/12/1990, au prix de 200 000 € (Hors branchements et raccordements, papiers peints, peintures, revêtement de sol dans les chambres, qui sont chiffrés dans les travaux qui restent à charge du client. Tarif modifiable sans préavis). Étiquette énergie : A. Différents modèles disponibles pour ce terrain. Assurances et garanties du constructeur comprises (RC professionnelle, décennale, dommage ouvrage).Agence Maisons France Confort de Bayeux (14400)
- Téléphone :
- 02 31 51 20 91
- Adressse :
- 2, rue Saint Loup
14400 Bayeux, France
