Maison neuve à
Esquay-sur-Seulles
(14400) Référence :
JS2322640_6
Prix du projet : Maison avec Terrain
prix 221 000 €
- 6 pièces
- 4 chambres
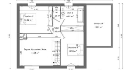
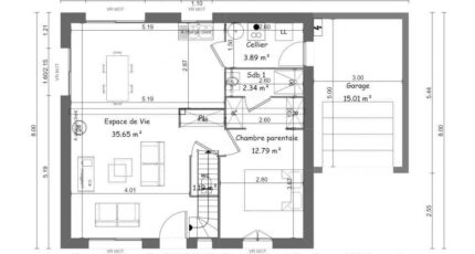
- Surface maison 110 m2
Maison de 6 pièces (110 m²) à vendre à Bayeux
PROCHE DE CAEN - MAISON 6 PIÈCES NEUVE
À 9 km de la Manche et à deux pas de Caen, nous vous présentons cette maison de 6 pièces de 110 m² et de 303 m² de terrain à Bayeux (14400).
Cette maison compte 2 niveaux. Elle propose quatre chambres, une cuisine et deux salles de bains. La maison est neuve.
Tous les types d'écoles (maternelle, élémentaire et secondaire) sont implantés à moins de 10 minutes à pied, tout comme une crèche. Côté transports en commun, il y a la gare Bayeux à proximité. On trouve un accès à la nationale N13 à 3 km. On trouve une bibliothèque, des commerces, des boulangeries, un supermarché, un bureau de poste et une supérette dans les environs. 2 marchés animent les environs.
Son prix de vente est de 221 000 €.
Contactez notre agence (HUE Emilie : 06-29-81-46-66) pour tout renseignement sur cette maison ou sur les démarches à suivre. Donnez vie à vos projets immobiliers avec Maisons France Confort Bayeux.
Annonce proposée par un Agent Commercial Partenaire.
Mentions légales
Terrain proposé par un partenaire foncier selon disponibilités et autorisation de publicité au prix de 56 000 €. Hors droit d'enregistrement et frais de notaire. Maison proposée, avec un contrat de construction de maison individuelle, dans le cadre de la loi du 19/12/1990, au prix de 165 000 € (Hors branchements et raccordements, papiers peints, peintures, revêtement de sol dans les chambres, qui sont chiffrés dans les travaux qui restent à charge du client. Tarif modifiable sans préavis). Étiquette énergie : A. Différents modèles disponibles pour ce terrain. Assurances et garanties du constructeur comprises (RC professionnelle, décennale, dommage ouvrage).Agence Maisons France Confort de Bayeux (14400)
- Téléphone :
- 02 31 51 20 91
- Adressse :
- 2, rue Saint Loup
14400 Bayeux, France
