Maison neuve à
Estillac
(47310) Référence :
HC2490745_5
Prix du projet : Maison avec Terrain
prix 355 000 €
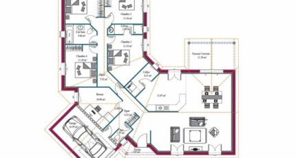
- 7 pièces
- 4 chambres
- Surface maison 146 m2
VENTE : Charmante maison contemporaine, 145m²
Maison T6 à 5km d'Agen-Sud, dans un secteur recherché.
Idéal primo-accédants, familles ou investisseurs. A proximité des commerces, écoles, médecins, lignes de bus, accès autoroute.
▪️ Modèle Plaisir-Sud :
- 5 chambres avec placards
- Grande suite parentale
- Salon/séjour lumineux
- Cuisine ouverte avec cellier
- Garage
- Terrasse couverte
- Modèle entièrement personnalisable !
- DPE : A (norme RE2020)
- CCMI et garantie de livraison
Chiffrage projet réalisé sur la base d'une maison prêt à décorer, hors frais de notaire.
Pour toute information sur la maison, sur les modalités de vente ou sur les démarches à suivre, contactez Hugo Chambon au numéro indiqué sur la photo.
Mentions légales
Idée de réalisation en modèle prêt à décorer sur l'un de nos terrains partenaires, sous réserve de disponibilités. Voir détails en agence.Agence Maisons de la Côte Atlantique de Boé (47550)
- Téléphone :
- 05 64 25 07 47
- Adressse :
- 111 Avenue de bigorre
47550 Boé, France
