Maison neuve à
Fabas
(31230) Référence :
TF2432946_6
Prix du projet : Maison avec Terrain
prix 312 900 €
- 7 pièces
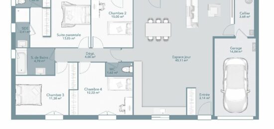
- 5 chambres
- Surface maison 145 m2
VENTE d'une maison de 7 pièces (145 m²) à Fabas
EMPLACEMENT PRIVILÉGIÉ - MAISON 7 PIÈCES NEUVE
En vente : venez découvrir, bénéficiant d'un emplacement d'exception dans Fabas (31230), cette maison de 7 pièces de 145 m² et de 4 770 m² de terrain.
Cette maison possède 2 niveaux. Elle est composée de cinq chambres, d'une cuisine et de deux salles de bains. La maison est neuve.
Cette maison est située dans un secteur recherché. L'autoroute A64 est accessible à 16 km. On trouve un tennis à quelques minutes à peine.
Elle est à vendre pour la somme de 312 900 € frais annexes à prévoir (notaires sur terrain, raccordements ...).
🎨 Votre maison, votre style :
Personnalisez les plans selon vos besoins et vos envies.
Choisissez parmi nos prestations pour un intérieur qui reflète votre mode de vie et votre budget.
📞 Contactez Maisons France Confort dès aujourd'hui au 05.61.76.07.80 pour découvrir comment faire la maison de vos rêves. Avec plus de 105 ans d'expérience, Maisons France Confort vous accompagne à chaque étape de votre projet.
✨ Maisons France Confort : Bien construire votre futur ✨
Annonce proposée par un Agent Commercial Partenaire.
Mentions légales
Terrain proposé par un partenaire foncier selon disponibilités et autorisation de publicité au prix de 70 000 €. Hors droit d'enregistrement et frais de notaire. Terrain + Maison proposés au prix de 312 900 € (Hors branchements et raccordements, papiers peints, peintures, revêtement de sol dans les chambres. Tarif modifiable sans préavis). Etiquette énergie : A. Différents modèles disponibles pour ce terrain. Assurances et garanties du constructeur (RC professionnelle, décennale, dommage ouvrage, garantie de remboursement de l'acompte, livraison à prix et délai convenu) : https://www.maisons-france-confort.fr/mentions-legales/. HEXAOM Services est enregistré auprès de l'ORIAS en tant que Courtier en financement, Niveau 1, sous le numéro 14001345.Agence Maisons France Confort de Muret (31600)
- Téléphone :
- 05 61 76 07 80
- Adressse :
- 7, allée Niel
31600 Muret, France
