Maison neuve à
Falaise
(14700) Référence :
AV2359421_3
Prix du projet : Maison avec Terrain
prix 161 000 €
- 4 pièces
- 3 chambres
- Surface maison 70 m2
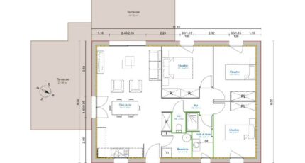
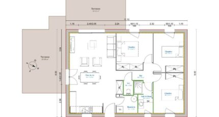
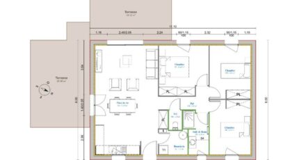
Maison de 4 pièces (70 m²) en vente à Saint-Martin-de-Mieux
MAISON 4 PIÈCES NEUVE
En vente : à 46 km de la Manche, Maisons France Confort Lisieux vous propose à Saint-Martin-de-Mieux (14700), cette maison de 4 pièces de plain-pied de 70 m² et de 832 m² de terrain. Conçue de plain-pied, elle se divise en trois chambres, une cuisine et une salle de bains.
La maison est neuve.
Une école élémentaire est implantée dans le quartier. L'autoroute A88 et la nationale N158 sont accessibles à moins de 2 km. Il y a une boucherie-charcuterie à quelques minutes du logement.
Son prix de vente est de 161 000 €.
Contactez notre agence (VAUDRY Angélique : 02-31-62-91-30) pour plus de renseignements sur la maison. Maisons France Confort Lisieux est là pour vous accompagner dans toutes vos démarches.
Mentions légales
Terrain proposé par un partenaire foncier selon disponibilités et autorisation de publicité au prix de 38 150 €. Hors droit d'enregistrement et frais de notaire. Terrain + Maison proposés au prix de 161 000 € (Hors branchements et raccordements, papiers peints, peintures, revêtement de sol dans les chambres. Tarif modifiable sans préavis). Etiquette énergie : A. Différents modèles disponibles pour ce terrain. Assurances et garanties du constructeur (RC professionnelle, décennale, dommage ouvrage, garantie de remboursement de l'acompte, livraison à prix et délai convenu) : https://www.maisons-france-confort.fr/mentions-legales/. HEXAOM Services est enregistré auprès de l'ORIAS en tant que Courtier en financement, Niveau 1, sous le numéro 14001345.Agence Maisons France Confort de Lisieux (14100)
- Téléphone :
- 02 31 62 91 30
- Adressse :
- 41 boulevard Jeanne d'Arc
14100 Lisieux, France
