Maison neuve à
Fatouville-Grestain
(27210) Référence :
AL2401342_11
Prix du projet : Maison avec Terrain
prix 249 600 €
- 5 pièces
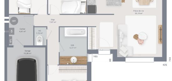
- 3 chambres
- Surface maison 90 m2
VENTE d'une maison T5 (90 m²) à Fatouville-Grestain
PROCHE DU HAVRE - MAISON 5 PIÈCES NEUVE
En vente à 5 km de la Manche et à deux pas du Havre, Maisons France Confort Deauville vous propose cette maison de 5 pièces de plain-pied de 90 m² et de 672 m² de terrain à Fatouville-Grestain (27210).
Son intérieur inclut trois chambres, une cuisine et deux salles de bains. Cette maison est neuve.
Une école élémentaire est implantée dans le quartier. Les autoroutes A29, A13 et A131 sont accessibles à moins de 8 km.
Elle est proposée à l'achat pour 249 600 €.
Contactez Aurélien LEMONNIER (tél : 06-12-12-45-94) pour toute question sur la maison ou sur les démarches à suivre. Maisons France Confort Deauville est là pour vous accompagner à toutes les étapes de votre projet.
Mentions légales
Terrain proposé par un partenaire foncier selon disponibilités et autorisation de publicité au prix de 59 000 €. Hors droit d'enregistrement et frais de notaire. Terrain + Maison proposés au prix de 249 600 € (Hors branchements et raccordements, papiers peints, peintures, revêtement de sol dans les chambres. Tarif modifiable sans préavis). Etiquette énergie : A. Différents modèles disponibles pour ce terrain. Assurances et garanties du constructeur (RC professionnelle, décennale, dommage ouvrage, garantie de remboursement de l'acompte, livraison à prix et délai convenu) : https://www.maisons-france-confort.fr/mentions-legales/. HEXAOM Services est enregistré auprès de l'ORIAS en tant que Courtier en financement, Niveau 1, sous le numéro 14001345.Agence Maisons France Confort de Deauville (14800)
- Téléphone :
- 02 31 87 32 01
- Adressse :
- 45, Avenue de la République
14800 Deauville, France
