Maison neuve à
Feillens (01570) Référence : SG2602_1

Prix du projet : Maison avec Terrain

prix 358 000 €

  • 4 pièces
  • 3 chambres
  • Surface maison 117 m2

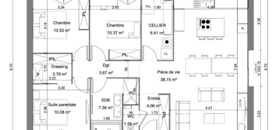
Feillens : maison de 4 pièces (117 m²) en vente
MAISON 4 PIÈCES NEUVE - PROCHE DE MÂCON
En vente : située à 6 km de Mâcon, à Feillens (01570), votre agence Maisons France Confort Bourg-en-Bresse est ravie de vous présenter cette maison de 4 pièces de plain-pied de 117 m² et de 600 m² de terrain. Son intérieur comporte trois chambres, une cuisine et deux salles de bains.
Cette maison est neuve.
Il y a trois établissements scolaires à moins de 10 minutes à pied et, parmi lesquels le Collège Privé Saint Charles et l'École Primaire Privée de Limerol. Côté transports, on trouve les gares Mâcon, Senozan et Pont-de-Veyle à moins de 10 minutes en voiture. On trouve un accès à l'autoroute A40 à 1 km. Il y a une bibliothèque, un tennis, deux boulangeries, quatre commerces, un supermarché et un bureau de poste à quelques minutes à peine.
Son prix de vente est de 358 000 €.
Contactez notre agence (GABRILLARGUES Sébastien : 06-81-77-73-67) pour obtenir de plus amples renseignements sur la maison ou sur les modalités de vente. Faites de vos projets immobiliers une réalité avec Maisons France Confort Bourg-en-Bresse.

Annonce proposée par un Agent Commercial Partenaire.

Mentions légales

Terrain proposé par un partenaire foncier selon disponibilités et autorisation de publicité au prix de 99 000 €. Hors droit d'enregistrement et frais de notaire. Terrain + Maison proposés au prix de 358 000 € (Hors branchements et raccordements, papiers peints, peintures, revêtement de sol dans les chambres. Tarif modifiable sans préavis). Etiquette énergie : A. Différents modèles disponibles pour ce terrain. Assurances et garanties du constructeur (RC professionnelle, décennale, dommage ouvrage, garantie de remboursement de l'acompte, livraison à prix et délai convenu) : https://www.maisons-france-confort.fr/mentions-legales/. HEXAOM Services est enregistré auprès de l'ORIAS en tant que Courtier en financement, Niveau 1, sous le numéro 14001345.

Contactez l'agence de Bourg-en-Bresse

04 74 14 04 47

    * Champs obligatoires

    Vos informations sont traitées par HEXAOM et transmises à un conseiller commercial qui vous contactera afin de répondre à votre demande. Les plans et images présentés sur notre site sont la propriété d’HEXAOM et ne peuvent pas être reproduits sans son accord. Pour retrouver notre politique de protection des données personnelles et exercer vos droits conformément à la « loi informatique et liberté » cliquez-ici.