Maison neuve à
Feneu (49460) Référence : CP2480720_1

Prix du projet : Maison avec Terrain

prix 398 000 €

  • 6 pièces
  • 4 chambres
  • Surface maison 142 m2

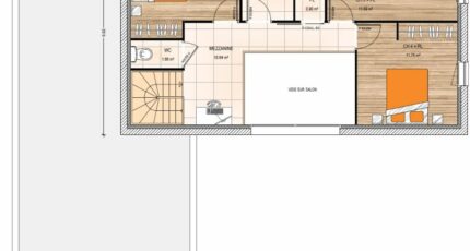
VENTE : maison de 6 pièces (142 m²) à Feneu
EMPLACEMENT PRIVILÉGIÉ - MAISON 6 PIÈCES NEUVE
En vente à 12 km d'Angers, nous vous présentons cette maison de 6 pièces de 142 m² bénéficiant d'un emplacement privilégié dans Feneu (49460).
Cette maison possède 2 niveaux. Son intérieur offre quatre chambres, une cuisine et deux salles de bains. Cette maison est neuve.
Le terrain du bien s'étend sur 580 m².
Cette maison se situe dans un quartier convoité. On trouve l'École Primaire Publique l'Eau Vive et l'École Primaire Privée Saint Dominique Savio à moins de 10 minutes à pied. Côté transports en commun, il y a les gares Le Vieux Briollay et Écouflant à moins de 10 minutes en voiture. On trouve un accès à l'autoroute A11 à 9 km. On trouve un commerce et une épicerie à quelques minutes de la maison.
Son prix de vente est de 398 000 €.
N'hésitez pas à prendre contact avec notre agence (Carole PORCHER : 06-88-98-52-77) pour tout renseignement sur la maison, sur les modalités de vente ou sur les démarches à suivre. Maisons Bernard Jambert Angers est là pour vous accompagner à toutes les étapes de l'achat.

Mentions légales

Terrain proposé par un partenaire foncier selon disponibilités et autorisation de publicité au prix de 90 000 €. Hors droit d'enregistrement et frais de notaire. Terrain + Maison proposés au prix de 398 000 € (Hors branchements et raccordements, papiers peints, peintures, revêtement de sol dans les chambres. Tarif modifiable sans préavis). Etiquette énergie : A. Différents modèles disponibles pour ce terrain. Assurances et garanties du constructeur (RC professionnelle, décennale, dommage ouvrage, garantie de remboursement de l'acompte, livraison à prix et délai convenu) : https://www.maisons-bernard-jambert.com/informations-legales/.

Contactez l'agence de Angers

02 41 77 17 17

    * Champs obligatoires

    Vos informations sont traitées par HEXAOM et transmises à un conseiller commercial qui vous contactera afin de répondre à votre demande. Les plans et images présentés sur notre site sont la propriété d’HEXAOM et ne peuvent pas être reproduits sans son accord. Pour retrouver notre politique de protection des données personnelles et exercer vos droits conformément à la « loi informatique et liberté » cliquez-ici.