Maison neuve à
Fenouillet
(31150) Référence :
DB2448057_4
Prix du projet : Maison avec Terrain
prix 285 000 €
- 5 pièces
- 4 chambres
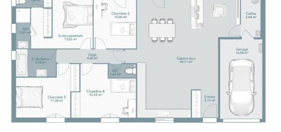
- Surface maison 103 m2
Votre agence Maisons France Confort d'Aucamville vous propose ce beau projet maison + terrain sur la commune de Fenouillet.
Venez découvrir ce plain-pied à l'architecture sobre et élégante. Cette maison est conçue de manière ingénieuse, fonctionnelle et adaptable. Les volumes sont optimisés pour que chaque membre de la famille puisse avoir son propre espace. Les atouts de ce modèle Optima de 103 m² : zones jour et nuit séparées, suite parentale avec salle d'eau privative en option, salle de bains en plus de la salle d'eau, WC séparés, cellier attenant à l'arrière-cuisine avec accès direct au garage, et de nombreux espaces de rangement.
Prix : 285 000 € HF.
Pour toute information, contactez l'agence Maisons France Confort d'Aucamville.
Annonce proposée par un Agent Commercial Partenaire.
Mentions légales
Terrain proposé par un partenaire foncier selon disponibilités et autorisation de publicité au prix de 118 800 €. Hors droit d'enregistrement et frais de notaire. Terrain + Maison proposés au prix de 285 000 € (Hors branchements et raccordements, papiers peints, peintures, revêtement de sol dans les chambres. Tarif modifiable sans préavis). Etiquette énergie : A. Différents modèles disponibles pour ce terrain. Assurances et garanties du constructeur (RC professionnelle, décennale, dommage ouvrage, garantie de remboursement de l'acompte, livraison à prix et délai convenu) : https://www.maisons-france-confort.fr/mentions-legales/. HEXAOM Services est enregistré auprès de l'ORIAS en tant que Courtier en financement, Niveau 1, sous le numéro 14001345.Agence Maisons France Confort de Aucamville (31140)
- Téléphone :
- 05 34 43 84 38
- Adressse :
- 17 chemin Bellegarrigues
31140 Aucamville, France
