Maison neuve à
Fenouillet (31150) Référence : DB2448057_6

Prix du projet : Maison avec Terrain

prix 315 000 €

  • 6 pièces
  • 5 chambres
  • Surface maison 125 m2

Votre agence Maisons France Confort d'Aucamville vous propose ce beau projet maison + terrain sur la commune de Fenouillet.

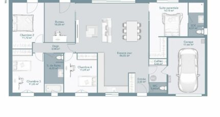
Avec Optima 125, vous optez pour une pièce de vie volumineuse, agréable et fonctionnelle ainsi que des espaces de nuit distincts pour les parents et les enfants. En effet, la pièce de vie est au centre de la maison : d'un côté on retrouve trois chambres et un bureau pour les enfants, et de l'autre, une suite parentale en option avec salle d'eau et dressing. Autre atout de la composition de cette maison : son garage avec accès direct à la maison par le cellier. La composition idéale pour un plain-pied optimisé !

Prix : 315 000 € HF.

Pour toute information, contactez l'agence Maisons France Confort d'Aucamville.

Annonce proposée par un Agent Commercial Partenaire.

Mentions légales

Terrain proposé par un partenaire foncier selon disponibilités et autorisation de publicité au prix de 118 800 €. Hors droit d'enregistrement et frais de notaire. Terrain + Maison proposés au prix de 315 000 € (Hors branchements et raccordements, papiers peints, peintures, revêtement de sol dans les chambres. Tarif modifiable sans préavis). Etiquette énergie : A. Différents modèles disponibles pour ce terrain. Assurances et garanties du constructeur (RC professionnelle, décennale, dommage ouvrage, garantie de remboursement de l'acompte, livraison à prix et délai convenu) : https://www.maisons-france-confort.fr/mentions-legales/. HEXAOM Services est enregistré auprès de l'ORIAS en tant que Courtier en financement, Niveau 1, sous le numéro 14001345.

Contactez l'agence de Aucamville

05 34 43 84 38

    * Champs obligatoires

    Vos informations sont traitées par HEXAOM et transmises à un conseiller commercial qui vous contactera afin de répondre à votre demande. Les plans et images présentés sur notre site sont la propriété d’HEXAOM et ne peuvent pas être reproduits sans son accord. Pour retrouver notre politique de protection des données personnelles et exercer vos droits conformément à la « loi informatique et liberté » cliquez-ici.