Maison neuve à
Ferrals-les-Corbières
(11200) Référence :
SE2451043_3
Prix du projet : Maison avec Terrain
prix 254 599 €
- 6 pièces
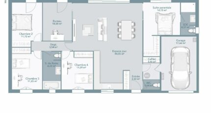
- 5 chambres
- Surface maison 125 m2
VENTE : maison de 6 pièces (125 m²) à Ferrals-les-Corbières
IDÉALEMENT SITUÉE - MAISON 6 PIÈCES NEUVE
À 40 km de la mer Méditerranée et à 24 km de Narbonne, en vente idéalement située dans Ferrals-les-Corbières (11200), votre agence Maisons France Confort Carcassonne est ravie de vous présenter cette maison de 6 pièces de plain-pied de 125 m². Elle compte cinq chambres, une cuisine et deux salles de bains.
Le terrain de cette maison s'étend sur 423 m².
La maison est neuve.
La maison est située dans un quartier prisé. On trouve l'école élémentaire École Arnaud Beltrame à moins de 10 minutes à pied. Côté transports, il y a la gare Lézignan-Corbières à moins de 10 minutes en voiture. On trouve un tennis, un bureau de poste et une épicerie à proximité.
Elle est à vendre pour la somme de 254 599 €.
N'hésitez pas à prendre contact avec Stéphane EMBID (06-65-50-56-62) pour toute question sur la maison ou sur les modalités de vente.
Mentions légales
Terrain proposé par un partenaire foncier selon disponibilités et autorisation de publicité au prix de 65 000 €. Hors droit d'enregistrement et frais de notaire. Terrain + Maison proposés au prix de 254 599 € (Hors branchements et raccordements, papiers peints, peintures, revêtement de sol dans les chambres. Tarif modifiable sans préavis). Etiquette énergie : A. Différents modèles disponibles pour ce terrain. Assurances et garanties du constructeur (RC professionnelle, décennale, dommage ouvrage, garantie de remboursement de l'acompte, livraison à prix et délai convenu) : https://www.maisons-france-confort.fr/mentions-legales/. HEXAOM Services est enregistré auprès de l'ORIAS en tant que Courtier en financement, Niveau 1, sous le numéro 14001345.Agence Maisons France Confort de Carcassonne (11000)
- Téléphone :
- 04 68 47 39 25
- Adressse :
- 73 bis avenue du Général Leclerc
11000 Carcassonne, France
