Maison neuve à
Flayosc
(83780) Référence :
AG2267697_2
Prix du projet : Maison avec Terrain
prix 350 000 €
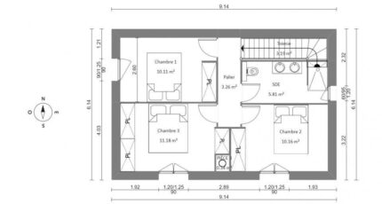
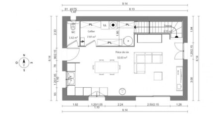
- 3 pièces
- 3 chambres
- Surface maison 80 m2
Maisons France Confort a étudié pour vous cette maison à étage aux formes épurées et au style provençal avec ces volets battants en bois, son enduit frotassé fin, son rang de génoise et ses menuiseries blanches ... Tous les style sont possible chez France Confort, et vous plutôt traditionnel ou moderne ? Contactez Alice GELOSA au 06 28 31 68 00 pour l'étude de votre projet personnalisé ! Maisons France Confort Trans en Provence
Mentions légales
Terrain proposé par un partenaire foncier selon disponibilités et autorisation de publicité au prix de 140 000 €. Hors droit d'enregistrement et frais de notaire. Maison proposée, avec un contrat de construction de maison individuelle, dans le cadre de la loi du 19/12/1990, au prix de 210 000 € (Hors branchements et raccordements, papiers peints, peintures, revêtement de sol dans les chambres, qui sont chiffrés dans les travaux qui restent à charge du client. Tarif modifiable sans préavis). Étiquette énergie : A. Différents modèles disponibles pour ce terrain. Assurances et garanties du constructeur comprises (RC professionnelle, décennale, dommage ouvrage).Agence Maisons France Confort de Trans-en-Provence (83720)
- Téléphone :
- 04 94 50 88 00
- Adressse :
- Centre Commercial ARCADIA BAT B
83720 Trans-en-Provence, France
