Maison neuve à
Flocques (76260) Référence : DD_eu44_02-2_1

Prix du projet : Maison avec Terrain

prix 164 000 €

  • 3 pièces
  • 2 chambres
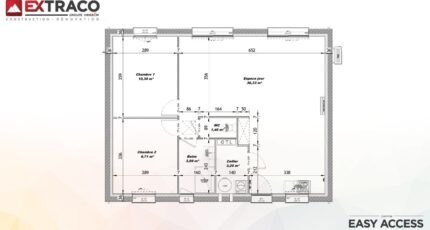
  • Surface maison 65 m2

VENTE : maison T3 (65 m²) à Flocques
MAISON 3 PIÈCES NEUVE
À 3 km de la Manche, notre agence Les Maisons Extraco Eu est heureuse de vous proposer en vente à Flocques (76260), cette maison de 3 pièces de plain-pied de 65 m². Elle propose deux chambres, une cuisine et une salle de bains.
Le terrain de la propriété s'étend sur 400 m².
La maison est neuve.
L'École Primaire du Tilleul se trouve à moins de 10 minutes à pied. Côté transports en commun, il y a les gares Le Tréport-Mers-les-Bains et Eu à moins de 10 minutes en voiture. On trouve un commerce dans les environs.
Son prix de vente est de 164 000 €.
Prenez contact avec Delphine DERULLES (06-67-13-79-40) pour toute information sur cette maison, sur les modalités de vente ou sur les démarches à suivre. Concrétisez vos projets immobiliers avec Les Maisons Extraco Eu.

Mentions légales

Terrain proposé par un partenaire foncier selon disponibilités et autorisation de publicité au prix de 50 000 €. Hors droit d'enregistrement et frais de notaire. Maison proposée, avec un contrat de construction de maison individuelle, dans le cadre de la loi du 19/12/1990, au prix de 114 000 € (Hors branchements et raccordements, papiers peints, peintures, revêtement de sol dans les chambres, qui sont chiffrés dans les travaux qui restent à charge du client. Tarif modifiable sans préavis). Étiquette énergie : A. Différents modèles disponibles pour ce terrain. Assurances et garanties du constructeur comprises (RC professionnelle, décennale, dommage ouvrage).