Maison neuve à
Floure
(11800) Référence :
SE2490545_17
Prix du projet : Maison avec Terrain
prix 408 207 €
- 6 pièces
- 4 chambres
- Surface maison 115 m2
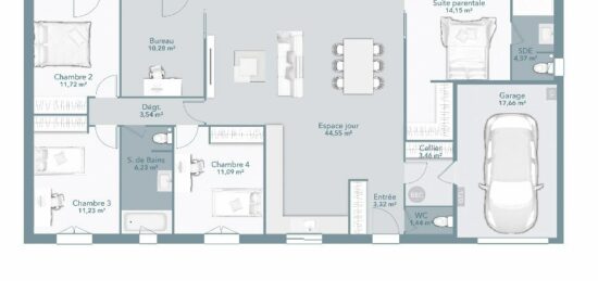
VENTE d'une maison de 6 pièces (115 m²) à Floure
IDÉALEMENT SITUÉE - MAISON 6 PIÈCES NEUVE
En vente : à deux pas de Carcassonne, Maisons France Confort Carcassonne vous présente cette maison de 6 pièces de plain-pied de 115 m² et de 1 305 m² de terrain, idéalement située dans Floure (11800).
Conçue de plain-pied, elle dispose de quatre chambres, d'une cuisine et de deux salles de bains. Cette maison est neuve.
Ce bien se situe dans un quartier convoité. Une école maternelle y est implantée. Il y a un accès à l'autoroute A61 à 6 km. Il y a un tennis à proximité de la maison.
Son prix de vente est de 408 207 €.
Contactez Stéphane EMBID (tél : 06-65-50-56-62) pour plus de renseignements sur la maison. Maisons France Confort Carcassonne est là pour vous accompagner à toutes les étapes de votre projet.
Mentions légales
Terrain proposé par un partenaire foncier selon disponibilités et autorisation de publicité au prix de 66 000 €. Hors droit d'enregistrement et frais de notaire. Terrain + Maison proposés au prix de 408 207 € (Hors branchements et raccordements, papiers peints, peintures, revêtement de sol dans les chambres. Tarif modifiable sans préavis). Etiquette énergie : A. Différents modèles disponibles pour ce terrain. Assurances et garanties du constructeur (RC professionnelle, décennale, dommage ouvrage, garantie de remboursement de l'acompte, livraison à prix et délai convenu) : https://www.maisons-france-confort.fr/mentions-legales/. HEXAOM Services est enregistré auprès de l'ORIAS en tant que Courtier en financement, Niveau 1, sous le numéro 14001345.Agence Maisons France Confort de Carcassonne (11000)
- Téléphone :
- 04 68 47 39 25
- Adressse :
- 73 bis avenue du Général Leclerc
11000 Carcassonne, France
