Maison neuve à
Fontaine-Fourches (77480) Référence : CY2435823_1

Prix du projet : Maison avec Terrain

prix 201 000 €

  • 5 pièces
  • 3 chambres
  • Surface maison 90 m2

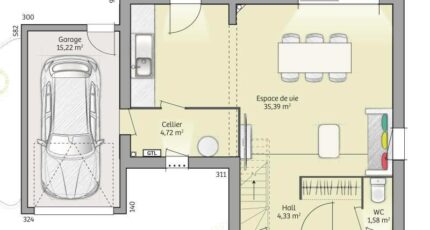
Maison de 5 pièces (90 m²) à vendre à Fontaine-Fourches
MAISON 5 PIÈCES NEUVE - PROCHE DE SENS
À quelques kilomètres de Sens, en vente à Fontaine-Fourches (77480), votre agence Maisons France Confort Magny-le-Hongre est heureuse de vous présenter cette maison de 5 pièces de 90 m². Son intérieur est composé de trois chambres, d'une cuisine et d'une salle de bains.
Le terrain du bien s'étend sur 700 m².
Cette maison compte 2 niveaux. Elle est neuve.
Une école primaire est implantée dans le quartier. Il y a un tennis et deux commerces dans les environs.
Elle est à vendre pour la somme de 201 000 €.
Contactez notre constructeur (YAHIAOUI Cedric : 06-66-57-00-63) pour toute information sur la maison ou sur les modalités de vente. Maisons France Confort Magny-le-Hongre vous accompagne dans tous vos projets immobiliers et à toutes les étapes de l'achat.

Annonce proposée par un Agent Commercial Partenaire.

Mentions légales

Terrain proposé par un partenaire foncier selon disponibilités et autorisation de publicité au prix de 41 000 €. Hors droit d'enregistrement et frais de notaire. Terrain + Maison proposés au prix de 201 000 € (Hors branchements et raccordements, papiers peints, peintures, revêtement de sol dans les chambres. Tarif modifiable sans préavis). Etiquette énergie : A. Différents modèles disponibles pour ce terrain. Assurances et garanties du constructeur (RC professionnelle, décennale, dommage ouvrage, garantie de remboursement de l'acompte, livraison à prix et délai convenu) : https://www.maisons-france-confort.fr/mentions-legales/. HEXAOM Services est enregistré auprès de l'ORIAS en tant que Courtier en financement, Niveau 1, sous le numéro 14001345.

Contactez l'agence de Magny-le-Hongre

01 84 80 92 96

    * Champs obligatoires

    Vos informations sont traitées par HEXAOM et transmises à un conseiller commercial qui vous contactera afin de répondre à votre demande. Les plans et images présentés sur notre site sont la propriété d’HEXAOM et ne peuvent pas être reproduits sans son accord. Pour retrouver notre politique de protection des données personnelles et exercer vos droits conformément à la « loi informatique et liberté » cliquez-ici.