Maison neuve à
Fontainebleau
(77300) Référence :
FS2427502_2
Prix du projet : Maison avec Terrain
prix 255 000 €
- 5 pièces
- 4 chambres
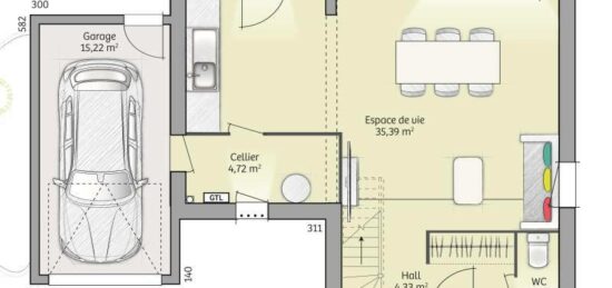
- Surface maison 98 m2
Thomery : maison de 5 pièces (98 m²) à vendre
PROCHE DE MELUN - MAISON 5 PIÈCES NEUVE
En vente : proche du Transilien R (45 min de Paris), nous sommes ravis de vous proposer cette maison de 5 pièces de 98 m² et de 670 m² de terrain à Thomery (77810). Son intérieur se divise en quatre chambres, une cuisine et une salle de bains.
Cette maison compte 2 niveaux. Elle est neuve.
Il y a l'École Primaire Jacquemin, l'École Maternelle Rose Charmeux et l'École Élémentaire Alexandre Huet à moins de 10 minutes à pied. Niveau transports en commun, on trouve 11 gares à moins de 10 minutes en voiture. On trouve une bibliothèque, deux tennis, un commerce, une boulangerie, un supermarché et un bureau de poste à proximité.
Elle est à vendre pour la somme de 255 000 €.
Contactez Félix SOUMARMON (tél : 06-10-24-97-84) pour tout renseignement sur la maison.
Annonce proposée par un Agent Commercial Partenaire.
Mentions légales
Terrain proposé par un partenaire foncier selon disponibilités et autorisation de publicité au prix de 85 000 €. Hors droit d'enregistrement et frais de notaire. Terrain + Maison proposés au prix de 255 000 € (Hors branchements et raccordements, papiers peints, peintures, revêtement de sol dans les chambres. Tarif modifiable sans préavis). Etiquette énergie : A. Différents modèles disponibles pour ce terrain. Assurances et garanties du constructeur (RC professionnelle, décennale, dommage ouvrage, garantie de remboursement de l'acompte, livraison à prix et délai convenu) : https://www.maisons-france-confort.fr/mentions-legales/. HEXAOM Services est enregistré auprès de l'ORIAS en tant que Courtier en financement, Niveau 1, sous le numéro 14001345.Agence Maisons France Confort de Mareuil-lès-Meaux (77100)
- Téléphone :
- 01 60 09 28 30
- Adressse :
- Domexpo Est Village La Hayette
77100 Mareuil-lès-Meaux, France