Maison neuve à
Fontenay-le-Pesnel
(14250) Référence :
JS2392567_5
Prix du projet : Maison avec Terrain
prix 240 900 €
- 7 pièces
- 5 chambres
- Surface maison 120 m2
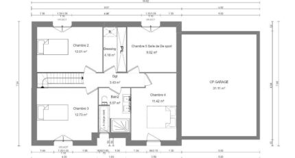
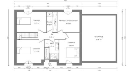
Maison de 7 pièces (120 m²) en vente à Hottot-les-Bagues
Idéalement située - À découvrir à Hottot-les-Bagues (14250) : maison neuve 7 pièces à vendre, 2 niveaux, 120 m² sur 413 m² de terrain. Elle propose cinq chambres, une cuisine et deux salles de bains.
À dix minutes : gare (Audrieu), établissements scolaires, crèche, bibliothèques, tennis, bassin de natation, commerces, boulangeries, supermarchés, boucheries-charcuteries et épiceries. Marché Rue du Stade le dimanche matin. Autoroute A84 à 7 km. Caen à 21 km.
Cette maison de 7 pièces est proposée à l'achat pour 240 900 €.
N'hésitez pas à prendre contact avec notre agence (HUE Emilie : 06-29-81-46-66) pour tout renseignement sur la maison, sur les démarches à suivre ou sur les modalités de vente.
Annonce proposée par un Agent Commercial Partenaire.
Mentions légales
Terrain proposé par un partenaire foncier selon disponibilités et autorisation de publicité au prix de 40 900 €. Hors droit d'enregistrement et frais de notaire. Terrain + Maison proposés au prix de 240 900 € (Hors branchements et raccordements, papiers peints, peintures, revêtement de sol dans les chambres. Tarif modifiable sans préavis). Etiquette énergie : A. Différents modèles disponibles pour ce terrain. Assurances et garanties du constructeur (RC professionnelle, décennale, dommage ouvrage, garantie de remboursement de l'acompte, livraison à prix et délai convenu) : https://www.maisons-france-confort.fr/mentions-legales/. HEXAOM Services est enregistré auprès de l'ORIAS en tant que Courtier en financement, Niveau 1, sous le numéro 14001345.Agence Maisons France Confort de Bayeux (14400)
- Téléphone :
- 02 31 51 20 91
- Adressse :
- 2, rue Saint Loup
14400 Bayeux, France
