Maison neuve à
Forêt-la-Folie
(27510) Référence :
MD2318733_2
Prix du projet : Maison avec Terrain
prix 225 000 €
- 6 pièces
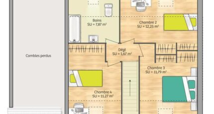
- 4 chambres
- Surface maison 89 m2
VENTE d'une maison de 6 pièces (89 m²) à Forêt-la-Folie
IDÉALEMENT SITUÉE - MAISON 6 PIÈCES NEUVE
En vente : à 28 km de Mantes-la-Jolie, idéalement située dans Forêt-la-Folie (27510), nous sommes ravis de vous proposer cette maison de 6 pièces de 89 m². Elle se divise en quatre chambres, une cuisine et une salle de bains.
Le terrain du bien est de 1 000 m².
Cette maison comporte 2 niveaux. Elle est neuve.
Cette maison se trouve dans un secteur convoité. L'autoroute A13 est accessible à 19 km. Il y a un commerce à proximité du logement.
Elle est à vendre pour la somme de 225 000 €.
Prenez contact avec Murielle DEBART (06-29-34-36-28) pour obtenir de plus amples informations sur la maison. Maisons France Confort Vernon vous accompagne à toutes les étapes de votre projet et dans tous vos projets immobiliers.
Mentions légales
Terrain proposé par un partenaire foncier selon disponibilités et autorisation de publicité au prix de 40 000 €. Hors droit d'enregistrement et frais de notaire. Maison proposée, avec un contrat de construction de maison individuelle, dans le cadre de la loi du 19/12/1990, au prix de 185 000 € (Hors branchements et raccordements, papiers peints, peintures, revêtement de sol dans les chambres, qui sont chiffrés dans les travaux qui restent à charge du client. Tarif modifiable sans préavis). Étiquette énergie : A. Différents modèles disponibles pour ce terrain. Assurances et garanties du constructeur comprises (RC professionnelle, décennale, dommage ouvrage).Agence Maisons France Confort de Vernon (27200)
- Téléphone :
- 02 32 51 45 05
- Adressse :
- 38 rue Carnot
27200 Vernon, France
