Maison neuve à
Pineuilh
(33220) Référence :
BD2438298_2
Prix du projet : Maison avec Terrain
prix 282 000 €
- 5 pièces
- 4 chambres
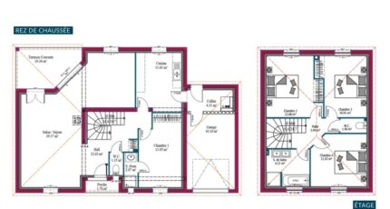
- Surface maison 130 m2
Votre future maison neuve MCA de 130m2 à Fougueyrolles à partir de 282 000 Euros.
Implantée sur ce beau terrain plat de 1100m2, bien exposé, elle offre un cadre de vie agréable à seulement quelques minutes des commodités.
Cette maison se compose d'un bel espace salon séjour convivial et lumineux de 40 m2 ,
-d'une cuisine fermée donnant sur un cellier et garage en enfilade pour plus de praticité
Un espace nuit optimisé pour toute la famille avec:
-1 chambre au RC avec son espace salle d'eau dédié.
-3 chambres à l'étage entre 11 et 13m2 chacune avec emplacements pour placards intégrés
- salle de bain et wc séparé à l'étage
Ce modèle a été pensé pour offrir un espace de vie agréable et bien agencé, parfait pour une famille. Son architecture contemporaine et ses volumes optimisés en font un habitat confortable, pratique et économe en énergie.
100% personnalisable, elle s'adapte à vos envies: aménagement des espaces, finitions, équipements.
Prix maison + terrain: à partir de 282 000 euros *
*Hors frais de notaire, hors viabilisation, hors terrassement, assainissement, adaptation à prévoir en fonction d'une visite technique sur le terrain, hors peintures intérieures et cuisine.
Pour plus d'informations et une étude personnalisée de votre projet contactez notre agent local Benoît DURAND au O6 65 85 53 20.
Nous vous accompagnons à chaque étape de votre projet!!
Mentions légales
Idée de réalisation en modèle prêt à décorer sur l'un de nos terrains partenaires, sous réserve de disponibilités. Voir détails en agence.Agence Maisons de la Côte Atlantique de Bergerac (24100)
- Téléphone :
- 05 53 22 30 10
- Adressse :
- La Cavaille Nord
24100 Bergerac, France
