Maison neuve à
Fourmetot
(27500) Référence :
JP2305525_3
Prix du projet : Maison avec Terrain
prix 209 000 €
- 4 pièces
- 3 chambres
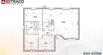
- Surface maison 84 m2
VENTE : maison F4 (84 m²) à Fourmetot
IDÉALEMENT SITUÉE - MAISON 4 PIÈCES NEUVE
À vendre : localisée à 15 km de la Manche, idéalement située dans Fourmetot (27500), nous vous présentons cette maison de 4 pièces de plain-pied de 84 m² et de 1 322 m² de terrain. Elle compte trois chambres, une cuisine et une salle de bains.
La maison est neuve.
Cette maison est située dans un quartier recherché. L'École Primaire Fourmetot se trouve à moins de 10 minutes à pied. Les autoroutes A13 et A131 sont accessibles à moins de 3 km.
Son prix de vente est de 209 000 €.
Contactez Juliette PETIT (06-66-70-24-56) pour obtenir de plus amples renseignements sur la maison. Les Maisons Extraco Pont-Audemer est là pour vous accompagner dans toutes vos démarches.