Maison neuve à
Fourmetot (27500) Référence : AV2471450_1

Prix du projet : Maison avec Terrain

prix 203 500 €

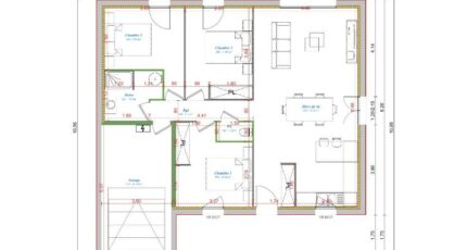
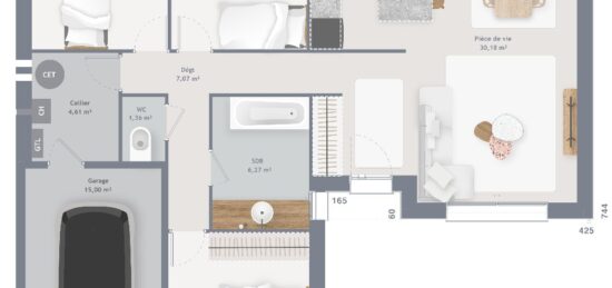
  • 5 pièces
  • 3 chambres
  • Surface maison 75 m2

Maisons France Confort Lisieux vous propose de construire cette maison de plain pied de 78m².

Il se compose d'une entrée avec placard, une belle pièce de vie lumineuse

Dans l'espace nuit, 3 chambres et une salle de bain.

Un accès au garage depuis la maison.

Belles prestations :

- carrelage 45*45
- menuiserie encastrer à la maçonnerie
- volet roulant électrique somfy
- système de chauffage très économique

Pour une étude de construction, merci de prendre rdv avec Mme Vaudry Angélique 06.48.23.57.76

Mentions légales

Terrain proposé par un partenaire foncier selon disponibilités et autorisation de publicité au prix de 53 500 €. Hors droit d'enregistrement et frais de notaire. Terrain + Maison proposés au prix de 203 500 € (Hors branchements et raccordements, papiers peints, peintures, revêtement de sol dans les chambres. Tarif modifiable sans préavis). Etiquette énergie : A. Différents modèles disponibles pour ce terrain. Assurances et garanties du constructeur (RC professionnelle, décennale, dommage ouvrage, garantie de remboursement de l'acompte, livraison à prix et délai convenu) : https://www.maisons-france-confort.fr/mentions-legales/. HEXAOM Services est enregistré auprès de l'ORIAS en tant que Courtier en financement, Niveau 1, sous le numéro 14001345.

Contactez l'agence de Lisieux

02 31 62 91 30

    * Champs obligatoires

    Vos informations sont traitées par HEXAOM et transmises à un conseiller commercial qui vous contactera afin de répondre à votre demande. Les plans et images présentés sur notre site sont la propriété d’HEXAOM et ne peuvent pas être reproduits sans son accord. Pour retrouver notre politique de protection des données personnelles et exercer vos droits conformément à la « loi informatique et liberté » cliquez-ici.