Maison neuve à 
  Fréjus
 (83600)  Référence :
 VC2271343_4 
Prix du projet : Maison avec Terrain
prix 458 000 €
- 5 pièces
- 4 chambres
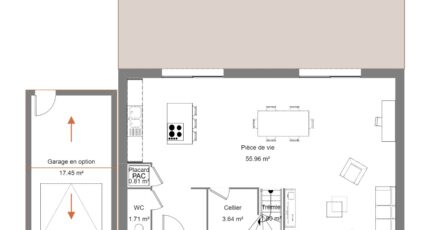
- Surface maison 119 m2
Projet de construction à Fréjus
Maisons France Confort vous propose cette belle villa neuve de 119m² habitable sur un terrain de 499m² idéalement situé à proximité de toutes les commodités et des axes routiers. 
Représentée par une architecture sombre et élégante, cette villa neuve se démarque au travers d'un plan maîtrisé. 
Elle se compose d'un bel espace de vie de 56m² très lumineux grâce à ses 2 grandes baies vitrées ouvrant sur le jardin, une cuisine ouverte, un cellier/buanderie, 4 chambres dont une suite parentale avec son dressing et sa salle d'eau privative. 
Une ligne confortable et fonctionnelle pour cette maison répondant aux normes RE2020. 
Vous y trouverez également de belles prestations tels que la climatisation sur l'ensemble de la maison, les volets roulants électriques, les menuiseries couleur anthracite, un pack domotique, et une isolation renforcée. Possibilité de prévoir un garage.
Votre projet clefs en mains à 458 000 euros incluant votre villa, le terrain, ainsi que le coût des raccordements.
Pour tous renseignements et une étude personnalisée, contacter Véronique CHAUVET au 06.28.31.67.99.
Maisons France Confort leader en France dans la construction de maisons individuelles. Entreprise fondée en 1919.
Mentions légales
Terrain proposé par un partenaire foncier selon disponibilités et autorisation de publicité au prix de 219 000 €. Hors droit d'enregistrement et frais de notaire. Maison proposée, avec un contrat de construction de maison individuelle, dans le cadre de la loi du 19/12/1990, au prix de 239 000 € (Hors branchements et raccordements, papiers peints, peintures, revêtement de sol dans les chambres, qui sont chiffrés dans les travaux qui restent à charge du client. Tarif modifiable sans préavis). Étiquette énergie : A. Différents modèles disponibles pour ce terrain. Assurances et garanties du constructeur comprises (RC professionnelle, décennale, dommage ouvrage).Agence Maisons France Confort de Trans-en-Provence (83720)
- Téléphone :
- 04 94 50 88 00
- Adressse :
-  Centre Commercial ARCADIA BAT B
 83720 Trans-en-Provence, France
 
  
  
  
  
  
  
  
  
  
  
  
  
  
  
  
  
 