Maison neuve à
Fréjus
(83600) Référence :
FDG2317821_4
Prix du projet : Maison avec Terrain
prix 358 000 €
- 5 pièces
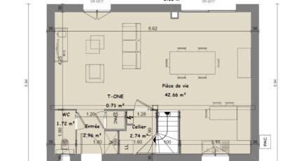
- 4 chambres
- Surface maison 98 m2
Maison T5 (98 m²) à vendre à Puget-sur-Argens
QUARTIER RECHERCHÉ - MAISON 5 PIÈCES NEUVE
En vente : à 13 km de la côte méditerranéenne et à 27 km de Cannes, votre agence Maisons France Confort Fréjus est heureuse de vous proposer cette maison de 5 pièces de 98 m² dans un quartier recherché de Puget-sur-Argens (83480). Elle propose quatre chambres, une cuisine et une salle de bains.
Le terrain du bien est de 454 m².
Cette maison possède 2 niveaux. Elle est neuve.
La maison se trouve dans un secteur attractif. On y trouve plusieurs établissements scolaires (maternelle, primaire et collège). Niveau transports, il y a les gares Fréjus et Saint-Raphaël à moins de 10 minutes en voiture. L'autoroute A8 est accessible à 2 km. On trouve une bibliothèque et un commerce dans les environs.
Elle est proposée à l'achat pour 358 000 €. Tarif hors frais de notaires, de raccordements et d'adaptation au sol.
N'hésitez pas à prendre contact avec Fabrice DI GREGORIO (O6-28-31-68-1O) pour tout renseignement sur la maison. Maisons France Confort Fréjus est là pour vous accompagner dans toutes vos démarches.
Mentions légales
Terrain proposé par un partenaire foncier selon disponibilités et autorisation de publicité au prix de 190 000 €. Hors droit d'enregistrement et frais de notaire. Maison proposée, avec un contrat de construction de maison individuelle, dans le cadre de la loi du 19/12/1990, au prix de 168 000 € (Hors branchements et raccordements, papiers peints, peintures, revêtement de sol dans les chambres, qui sont chiffrés dans les travaux qui restent à charge du client. Tarif modifiable sans préavis). Étiquette énergie : A. Différents modèles disponibles pour ce terrain. Assurances et garanties du constructeur comprises (RC professionnelle, décennale, dommage ouvrage).Agence Maisons France Confort de Fréjus (83600)
- Téléphone :
- 04 98 12 91 10
- Adressse :
- 992, Avenue de Provence
83600 Fréjus, France
