Maison neuve à
Fréjus
(83600) Référence :
FDG2317821_5
Prix du projet : Maison avec Terrain
prix 372 000 €
- 4 pièces
- 3 chambres
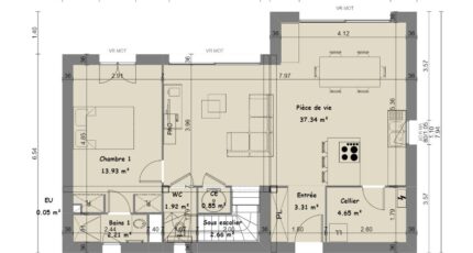
- Surface maison 95 m2
Maison de 4 pièces (95 m²) à vendre à Puget-sur-Argens
QUARTIER RECHERCHÉ - MAISON 4 PIÈCES NEUVE
En vente à 13 km de la mer Méditerranée et à quelques kilomètres de Cannes, située dans un secteur convoité de Puget-sur-Argens (83480), nous vous présentons cette maison de 4 pièces de 95 m² et de 454 m² de terrain. Son intérieur est composé de trois chambres, d'une cuisine et de deux salles de bains.
Cette maison compte 2 niveaux. Elle est neuve.
Cette maison se trouve dans un quartier attractif. Plusieurs écoles (maternelle, primaire et collège) y sont implantées. Niveau transports, il y a les gares Fréjus et Saint-Raphaël à moins de 10 minutes en voiture. L'autoroute A8 est accessible à 2 km. On trouve une bibliothèque et un commerce à proximité de la maison.
Elle est proposée à l'achat pour 372 000 €. Tarif hors frais de notaires, de raccordements et d'adaptation au sol.
N'hésitez pas à prendre contact avec Fabrice DI GREGORIO (O6-28-31-68-1O) pour tout renseignement sur la maison. Maisons France Confort Fréjus est là pour vous accompagner dans toutes vos démarches.
Mentions légales
Terrain proposé par un partenaire foncier selon disponibilités et autorisation de publicité au prix de 190 000 €. Hors droit d'enregistrement et frais de notaire. Maison proposée, avec un contrat de construction de maison individuelle, dans le cadre de la loi du 19/12/1990, au prix de 182 000 € (Hors branchements et raccordements, papiers peints, peintures, revêtement de sol dans les chambres, qui sont chiffrés dans les travaux qui restent à charge du client. Tarif modifiable sans préavis). Étiquette énergie : A. Différents modèles disponibles pour ce terrain. Assurances et garanties du constructeur comprises (RC professionnelle, décennale, dommage ouvrage).Agence Maisons France Confort de Fréjus (83600)
- Téléphone :
- 04 98 12 91 10
- Adressse :
- 992, Avenue de Provence
83600 Fréjus, France
