Maison neuve à
Fréjus (83600) Référence : VC2458370_3

Prix du projet : Maison avec Terrain

prix 475 000 €

  • 5 pièces
  • 4 chambres
  • Surface maison 119 m2

NOUVEAU - Projet de construction villa familiale à Fréjus

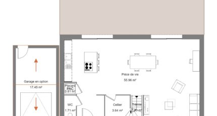
L'agence Maisons France Confort de Trans-en-Provence vous propose ce beau projet de villa neuve de 119 m² habitables, implantée sur un terrain de 503m², idéalement situé à proximité des axes routiers et de l'autoroute A8.

Dans un style moderne et élégant, cette villa se distingue par son architecture soignée et son agencement parfaitement optimisé.

Elle offre un magnifique espace de vie de 56 m², particulièrement lumineux grâce à deux grandes baies vitrées ouvrant sur le jardin, avec une cuisine ouverte pour un espace convivial et chaleureux.
Un cellier / buanderie vient compléter cet espace pour plus de praticité au quotidien.

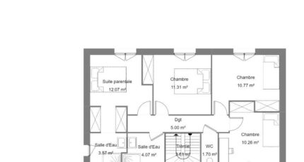
Côté nuit, la maison propose 4 chambres, dont une suite parentale avec dressing et salle d'eau privative, offrant confort et intimité. Une conception pensée pour répondre aux besoins de toute la famille.

Cette maison, conforme aux normes RE2020, vous garantit performance énergétique, confort de vie et économies d'énergie.

Vous bénéficierez également de prestations de qualité, telles que :
- Climatisation dans toute la maison
- Volets roulants électriques
- Menuiseries anthracite
- Pack domotique
- Toiture 4 pans
- Isolation renforcée
- Garage possible en option.

Votre projet clés en mains à 475 000 euros incluant la villa, le terrain et le coût des raccordements.

Pour tout renseignement ou une étude personnalisée de votre projet, contactez Véronique CHAUVET au O6 28 31 67 99

Maisons France Confort - Agence de Trans-en-Provence. Leader en France de la construction de maisons individuelles, entreprise familiale fondée en 1919.

Mentions légales

Terrain proposé par un partenaire foncier selon disponibilités et autorisation de publicité au prix de 228 000 €. Hors droit d'enregistrement et frais de notaire. Terrain + Maison proposés au prix de 475 000 € (Hors branchements et raccordements, papiers peints, peintures, revêtement de sol dans les chambres. Tarif modifiable sans préavis). Etiquette énergie : A. Différents modèles disponibles pour ce terrain. Assurances et garanties du constructeur (RC professionnelle, décennale, dommage ouvrage, garantie de remboursement de l'acompte, livraison à prix et délai convenu) : https://www.maisons-france-confort.fr/mentions-legales/. HEXAOM Services est enregistré auprès de l'ORIAS en tant que Courtier en financement, Niveau 1, sous le numéro 14001345.

Contactez l'agence de Trans-en-Provence

04 94 50 88 00

    * Champs obligatoires

    Vos informations sont traitées par HEXAOM et transmises à un conseiller commercial qui vous contactera afin de répondre à votre demande. Les plans et images présentés sur notre site sont la propriété d’HEXAOM et ne peuvent pas être reproduits sans son accord. Pour retrouver notre politique de protection des données personnelles et exercer vos droits conformément à la « loi informatique et liberté » cliquez-ici.