Maison neuve à
Fressies (59268) Référence : MM2465869_1

Prix du projet : Maison avec Terrain

prix 246 000 €

  • 3 pièces
  • 3 chambres
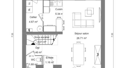
  • Surface maison 80 m2

VENTE d'une maison T3 (80 m²) à Fressies
IDÉALEMENT SITUÉE - MAISON 3 PIÈCES NEUVE
En vente : située à 10Km de Cambrai, notre agence Maisons France Confort Cambrai est ravie de vous proposer cette maison de 3 pièces de 80 m² et de 500 m² de terrain idéalement située dans Fressies (59268).
C'est une maison de 2 niveaux. Elle comporte trois chambres, une cuisine et une salle de bains. La maison est neuve.
Elle se situe dans un secteur convoité. On y trouve une école primaire. Côté transports en commun, on trouve six gares à moins de 10 minutes en voiture. Les autoroutes A2 et A26 sont accessibles à moins de 9 km.
Elle est à vendre pour la somme de 246 000 €.
Prenez contact avec notre constructeur (MAZZUCCO Mathieu : O6.40.99.52.08) pour toute information sur cette maison ou sur les démarches à suivre. Maisons France Confort Cambrai vous accompagne dans tous vos projets immobiliers et à toutes les étapes de votre projet.

Mentions légales

Terrain proposé par un partenaire foncier selon disponibilités et autorisation de publicité au prix de 61 000 €. Hors droit d'enregistrement et frais de notaire. Terrain + Maison proposés au prix de 246 000 € (Hors branchements et raccordements, papiers peints, peintures, revêtement de sol dans les chambres. Tarif modifiable sans préavis). Etiquette énergie : A. Différents modèles disponibles pour ce terrain. Assurances et garanties du constructeur (RC professionnelle, décennale, dommage ouvrage, garantie de remboursement de l'acompte, livraison à prix et délai convenu) : https://www.maisons-france-confort.fr/mentions-legales/. HEXAOM Services est enregistré auprès de l'ORIAS en tant que Courtier en financement, Niveau 1, sous le numéro 14001345.

Contactez l'agence de Cambrai

03 27 81 47 17

    * Champs obligatoires

    Vos informations sont traitées par HEXAOM et transmises à un conseiller commercial qui vous contactera afin de répondre à votre demande. Les plans et images présentés sur notre site sont la propriété d’HEXAOM et ne peuvent pas être reproduits sans son accord. Pour retrouver notre politique de protection des données personnelles et exercer vos droits conformément à la « loi informatique et liberté » cliquez-ici.