Maison neuve à 
  Frontignan
 (34110)  Référence :
 MM2292063_5 
Prix du projet : Maison avec Terrain
prix 480 000 €
- 6 pièces
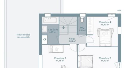
- 4 chambres
- Surface maison 110 m2
Frontignan : maison T6 (110 m²) en vente
MAISON 6 PIÈCES NEUVE
À vendre : à proximité de la gare, nous sommes heureux de vous proposer cette maison de 6 pièces de 110 m² à Frontignan (34110).
Cette maison possède 2 niveaux. Son intérieur est composé de quatre chambres, d'une cuisine et de deux salles de bains. La maison est neuve.
Le terrain de la propriété est de 284 m².
La mer Méditerranée se situe à 5,22 km. Des écoles du primaire et du secondaire se trouvent à moins de 10 minutes à pied. Côté transports, il y a la gare Frontignan dans un rayon de 1 km. L'autoroute A9 est accessible à 7 km. On trouve un tennis, des commerces, des boulangeries, un supermarché, quatre boucheries-charcuteries et des épiceries à proximité du logement.
Le prix de vente de cette maison est de 480 000 €.
Contactez Mickaël MARTINEZ (06-16-87-37-15) pour plus de renseignements sur cette maison ou sur les modalités de vente. Maisons France Confort Clermont-l'Hérault vous accompagne dans tous vos projets immobiliers et à toutes les étapes de l'achat.
Mentions légales
Terrain proposé par un partenaire foncier selon disponibilités et autorisation de publicité au prix de 205 000 €. Hors droit d'enregistrement et frais de notaire. Maison proposée, avec un contrat de construction de maison individuelle, dans le cadre de la loi du 19/12/1990, au prix de 275 000 € (Hors branchements et raccordements, papiers peints, peintures, revêtement de sol dans les chambres, qui sont chiffrés dans les travaux qui restent à charge du client. Tarif modifiable sans préavis). Étiquette énergie : A. Différents modèles disponibles pour ce terrain. Assurances et garanties du constructeur comprises (RC professionnelle, décennale, dommage ouvrage).Agence Maisons France Confort de Clermont-l'Hérault (34800)
- Téléphone :
- 04 67 96 00 74
- Adressse :
-  7 rue du Chardonnay
 34800 Clermont-l'Hérault, France
 
  
  
  
  
  
  
  
  
  
  
  
 