Maison neuve à
Frontignan (34110) Référence : MM2452725_7

Prix du projet : Maison avec Terrain

prix 490 000 €

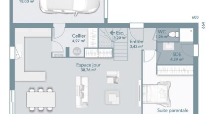
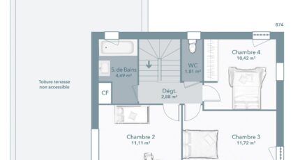
  • 6 pièces
  • 4 chambres
  • Surface maison 110 m2

Vous rêvez d'une maison qui vous ressemble ?
Devenez propriétaire d'une réalisation signée Maisons France Confort, le leader de la construction de maisons individuelles en France.
Nous vous proposons un accompagnement de A à Z pour votre projet de vie :
- Conception personnalisée : Architecture moderne ou traditionnelle selon vos envies.
- Performance énergétique : Des maisons économes, conformes aux dernières normes environnementales (RE2020).
- Plus de 200 terrains en stock dont 50% hors lotissements.
- Garanties solides : Contrat de Construction de Maisons Individuelle (CCMI), prix et délais convenus, garantie de parfait achèvement, assurance dommage-ouvrage...
Profitez de notre expertise locale pour trouver le terrain idéal et optimiser votre financement.
Contactez nous à l'agence de Clermont L'Hérault dès aujourd'hui pour donner vie à votre projet !

Mentions légales

Terrain proposé par un partenaire foncier selon disponibilités et autorisation de publicité au prix de 215 000 €. Hors droit d'enregistrement et frais de notaire. Terrain + Maison proposés au prix de 490 000 € (Hors branchements et raccordements, papiers peints, peintures, revêtement de sol dans les chambres. Tarif modifiable sans préavis). Etiquette énergie : A. Différents modèles disponibles pour ce terrain. Assurances et garanties du constructeur (RC professionnelle, décennale, dommage ouvrage, garantie de remboursement de l'acompte, livraison à prix et délai convenu) : https://www.maisons-france-confort.fr/mentions-legales/. HEXAOM Services est enregistré auprès de l'ORIAS en tant que Courtier en financement, Niveau 1, sous le numéro 14001345.

Contactez l'agence de Clermont-l'Hérault

04 67 96 00 74

    * Champs obligatoires

    Vos informations sont traitées par HEXAOM et transmises à un conseiller commercial qui vous contactera afin de répondre à votre demande. Les plans et images présentés sur notre site sont la propriété d’HEXAOM et ne peuvent pas être reproduits sans son accord. Pour retrouver notre politique de protection des données personnelles et exercer vos droits conformément à la « loi informatique et liberté » cliquez-ici.