Maison neuve à
Frouzins (31270) Référence : CE2486311_4

Prix du projet : Maison avec Terrain

prix 434 781 €

  • 6 pièces
  • 5 chambres
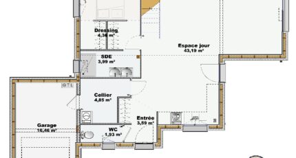
  • Surface maison 114 m2

VENTE : maison F6 (114 m²) à Frouzins avec l'agence Maisons France Confort Tournefeuille
EMPLACEMENT PRIVILÉGIÉ - MAISON 6 PIÈCES NEUVE
En vente : à quelques kilomètres de Toulouse, notre agence Maisons France Confort Tournefeuille est ravie de vous proposer cette maison de 6 pièces de 114 m² bénéficiant d'un emplacement d'exception dans Frouzins (31270).
Cette maison compte 2 niveaux. Son intérieur se divise en cinq chambres, une cuisine et deux salles de bains. Cette maison est neuve.
Le terrain du bien est de 504 m².
La maison se trouve dans un quartier attractif. Il y a l'École Maternelle Publique George Sand, l'École Élémentaire Publique Anatole France et le Collège Pablo Picasso à moins de 10 minutes à pied et une structure d'accueil pour la petite enfance. Niveau transports en commun, on trouve quatre gares à moins de 10 minutes en voiture. Les autoroutes A64 et A620 et la nationale N124 sont accessibles à moins de 10 km. Il y a un tennis, quatre commerces, trois boucheries-charcuteries et un bureau de poste à quelques minutes.
Elle est à vendre pour la somme de 434 781 €.
Contactez avec l'agence Maisons France Confort Tournefeuille pour plus de renseignements sur la maison.

Annonce proposée par un Agent Commercial Partenaire.

Mentions légales

Terrain proposé par un partenaire foncier selon disponibilités et autorisation de publicité au prix de 159 000 €. Hors droit d'enregistrement et frais de notaire. Terrain + Maison proposés au prix de 434 781 € (Hors branchements et raccordements, papiers peints, peintures, revêtement de sol dans les chambres. Tarif modifiable sans préavis). Etiquette énergie : A. Différents modèles disponibles pour ce terrain. Assurances et garanties du constructeur (RC professionnelle, décennale, dommage ouvrage, garantie de remboursement de l'acompte, livraison à prix et délai convenu) : https://www.maisons-france-confort.fr/mentions-legales/. HEXAOM Services est enregistré auprès de l'ORIAS en tant que Courtier en financement, Niveau 1, sous le numéro 14001345.

Contactez l'agence de Tournefeuille

05 61 16 47 77

    * Champs obligatoires

    Vos informations sont traitées par HEXAOM et transmises à un conseiller commercial qui vous contactera afin de répondre à votre demande. Les plans et images présentés sur notre site sont la propriété d’HEXAOM et ne peuvent pas être reproduits sans son accord. Pour retrouver notre politique de protection des données personnelles et exercer vos droits conformément à la « loi informatique et liberté » cliquez-ici.