Maison neuve à
Galargues
(34160) Référence :
NM2383886_1
Prix du projet : Maison avec Terrain
prix 395 000 €
- 6 pièces
- 5 chambres
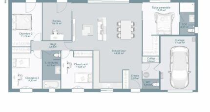
- Surface maison 125 m2
Profitez de ce projet personnalisable afin d'être propriétaire sur Galargues, à 23 km de la côte méditerranéenne et à quelques kilomètres seulement de Montpellier.
Ce projet se compose d'une maison - modèle Optima - de 125 m² disposant de 4 chambres dont la suite parentale avec sa salle d'eau, un bureau de 10 m² (pouvant servir de chambre d'amis), une salle de bain et 2 wc séparés, un spacieux séjour avec cuisine ouverte, et un cellier donnant accès au garage.
GARANTIES CCMI COMPRISES.
N'hésitez pas à prendre contact avec notre agence Maisons France Confort St Gely du Fesc au 04-67-66-49-65 pour toutes demandes d'informations.
On trouve une école primaire dans le quartier. Les autoroutes A9 et A709 et la nationale N113 sont accessibles à moins de 14 km. Il y a un tennis et une épicerie dans les environs.
Annonce proposée par un Agent Commercial Partenaire.
Mentions légales
Terrain proposé par un partenaire foncier selon disponibilités et autorisation de publicité au prix de 179 900 €. Hors droit d'enregistrement et frais de notaire. Terrain + Maison proposés au prix de 395 000 € (Hors branchements et raccordements, papiers peints, peintures, revêtement de sol dans les chambres. Tarif modifiable sans préavis). Etiquette énergie : A. Différents modèles disponibles pour ce terrain. Assurances et garanties du constructeur (RC professionnelle, décennale, dommage ouvrage, garantie de remboursement de l'acompte, livraison à prix et délai convenu) : https://www.maisons-france-confort.fr/mentions-legales/. HEXAOM Services est enregistré auprès de l'ORIAS en tant que Courtier en financement, Niveau 1, sous le numéro 14001345.Agence Maisons France Confort de Saint-Gély-du-Fesc (34980)
- Téléphone :
- 04 67 66 49 65
- Adressse :
- 22 rue des lavandes
34980 Saint-Gély-du-Fesc, France
