Maison neuve à
Gap
(05000) Référence :
YD2389161_4
Prix du projet : Maison avec Terrain
prix 240 000 €
- 4 pièces
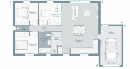
- 3 chambres
- Surface maison 83 m2
🏡 LA MAISON IDÉALE POUR DÉMARRER UNE NOUVELLE VIE
Projetez-vous dans une maison individuelle neuve de plain-pied - 83 m², pensée pour allier confort, modernité et sérénité, idéale pour une famille ou un premier achat.
✨ Les points forts du projet :
✔️ 3 chambres : chacun son espace, enfants, télétravail ou invités
✔️ Plain-pied : confort au quotidien, accessibilité totale
✔️ Norme RE2020 : maison économe, bien isolée, pensée pour l'avenir
✔️ Espaces optimisés : une maison fonctionnelle, sans perte de surface
💭 Une maison lumineuse, moderne et entièrement personnalisable selon vos envies, votre mode de vie et votre budget.
Un projet sécurisé, accompagné de A à Z, pour construire en toute confiance.
📞 Envie d'en savoir plus ? Un simple appel peut tout déclencher.
Parlons de votre projet, sans engagement.
Yves DESPIERRES
MAISONS FRANCE CONFORT - Construction & rénovation
📱 06.28.31.68.04
Mentions légales
Terrain proposé par un partenaire foncier selon disponibilités et autorisation de publicité au prix de 52 000 €. Hors droit d'enregistrement et frais de notaire. Terrain + Maison proposés au prix de 240 000 € (Hors branchements et raccordements, papiers peints, peintures, revêtement de sol dans les chambres. Tarif modifiable sans préavis). Etiquette énergie : A. Différents modèles disponibles pour ce terrain. Assurances et garanties du constructeur (RC professionnelle, décennale, dommage ouvrage, garantie de remboursement de l'acompte, livraison à prix et délai convenu) : https://www.maisons-france-confort.fr/mentions-legales/. HEXAOM Services est enregistré auprès de l'ORIAS en tant que Courtier en financement, Niveau 1, sous le numéro 14001345.Agence Maisons France Confort de Gap (05000)
- Téléphone :
- 04 92 51 38 48
- Adressse :
- 40 rue Carnot
05000 Gap, France
