Maison neuve à
Gardanne (13120) Référence : GB2477686_1

Prix du projet : Maison avec Terrain

prix 375 000 €

  • 4 pièces
  • 3 chambres
  • Surface maison 80 m2

Nouveau sur Gardanne !!

Sur la commune très recherché de Gardanne, à seulement 15 minutes de Aix en Provence,
Positionné sur un secteur résidentiel et pavillonnaire à proximité immédiate de tout .. Centre ville, écoles, collègue, transport, axes autoroutiers ..

Maisons France Confort Cabriès et son partenaire foncier ont sélectionné pour vous cette magnifique parcelle de terrain plane et ensoleillé d'une superficie de plus de 400 m2, parfaite pour accueillir votre future maison.
Viabilité en bordure à prévoir

Parce que notre métier est de construire la maison qui vous ressemble !!!

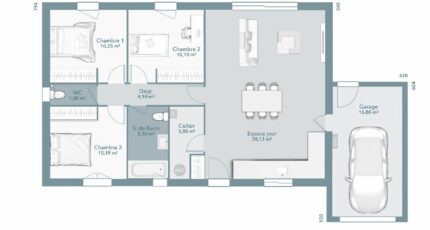
Exemple de projet ( modifiable selon vos envies, optimisé et adapté à votre budget )

° Maison de plain-pied
° 80 m2 habitable
° Belle pièce de vie ouverte sur l'extérieur
° Trois grandes chambres
° SDB - WC séparé
° Grande baie vitrée
° Conforme aux dernières normes (RE 2020)

Son prix : Terrain + Maison = 375 000 euros HORS FRAIS DE NOTAIRE, GARAGE ET TAXES

Mr Geoffrey BITANGA vous accompagne de la sélection de votre futur terrain, à la conception et réalisation de votre future habitation, selon vos envies et votre budget.
Joignable au o6-22-75-52-83_ o4-42-02-85-99

Mentions légales

Terrain proposé par un partenaire foncier selon disponibilités et autorisation de publicité au prix de 230 000 €. Hors droit d'enregistrement et frais de notaire. Terrain + Maison proposés au prix de 375 000 €. Tarif modifiable sans préavis. Etiquette énergie : A. Différents modèles disponibles pour ce terrain. Assurances et garanties du constructeur (RC professionnelle, décennale, dommage ouvrage, garantie de remboursement de l'acompte, livraison à prix et délai convenu) : https://www.maisons-france-confort.fr/mentions-legales/. HEXAOM Services est enregistré auprès de l'ORIAS en tant que Courtier en financement, Niveau 1, sous le numéro 14001345.

Contactez l'agence de Cabriès

04 42 02 85 99

    * Champs obligatoires

    Vos informations sont traitées par HEXAOM et transmises à un conseiller commercial qui vous contactera afin de répondre à votre demande. Les plans et images présentés sur notre site sont la propriété d’HEXAOM et ne peuvent pas être reproduits sans son accord. Pour retrouver notre politique de protection des données personnelles et exercer vos droits conformément à la « loi informatique et liberté » cliquez-ici.