Maison neuve à
Gargenville
(78440) Référence :
CZ2434586_3
Prix du projet : Maison avec Terrain
prix 345 000 €
- 8 pièces
- 5 chambres
- Surface maison 155 m2
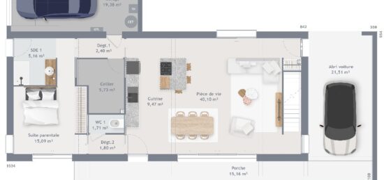
Maison de 8 pièces (155 m²) en vente à Gargenville
PROCHE DE NANTERRE - MAISON 8 PIÈCES NEUVE
En vente : à quelques minutes du Transilien J (50 min de Paris), nous vous proposons à Gargenville (78440), cette maison de 8 pièces de 155 m².
Cette maison possède 2 niveaux. Son intérieur compte cinq chambres, une cuisine et deux salles de bains. La maison est neuve.
Le terrain de la propriété s'étend sur 410 m².
Il y a plusieurs écoles (maternelle, élémentaire, primaire et collège) à moins de 10 minutes à pied. Côté transports, on trouve la gare Gargenville à proximité. On trouve une bibliothèque, un tennis, trois boulangeries, quatre commerces, un supermarché, une boucherie-charcuterie et deux épiceries dans les environs.
Son prix de vente est de 345 000 €.
Contactez Charles ZAGDANSKI (06-34-48-03-67) pour toute question sur cette propriété, sur les modalités de vente ou sur les démarches à suivre. Maisons France Confort Jouars-Pontchartrain est là pour vous accompagner dans tous vos projets immobiliers.
Mentions légales
Terrain proposé par un partenaire foncier selon disponibilités et autorisation de publicité au prix de 120 000 €. Hors droit d'enregistrement et frais de notaire. Terrain + Maison proposés au prix de 345 000 € (Hors branchements et raccordements, papiers peints, peintures, revêtement de sol dans les chambres. Tarif modifiable sans préavis). Etiquette énergie : A. Différents modèles disponibles pour ce terrain. Assurances et garanties du constructeur (RC professionnelle, décennale, dommage ouvrage, garantie de remboursement de l'acompte, livraison à prix et délai convenu) : https://www.maisons-france-confort.fr/mentions-legales/. HEXAOM Services est enregistré auprès de l'ORIAS en tant que Courtier en financement, Niveau 1, sous le numéro 14001345.Agence Maisons France Confort de Jouars-Pontchartrain (78760)
- Téléphone :
- 01 34 81 01 50
- Adressse :
- 3 allée André Le Nôtre
78760 Jouars-Pontchartrain, France
